成都人居江岸林语值得买吗?人居江岸林语的优点和缺点-售楼电话
扫描到手机,新闻随时看
扫一扫,用手机看文章
更加方便分享给朋友
【营销中心】:028-87777213「销售热线」
【置业顾问】:18613205563「微信同步」
【置业顾问】:19983517822「微信同步」
温馨提示:专业一对一热情服务,为了节约您的等待时间,看房请提前致电预约!!!
免责声明:
以上内容仅作为邀约邀请,涉及的图片为部分区域实拍图和美学畅想图,具体内容请以现场公示和合同约定为准;本文部分资料、部分图片来源于网络,如有侵权请联系我们删除。
核心卖点速览
✅ 400亩生态大城:容积率2.5,绿化率30%,江安河畔低密社区
✅ 交通优势:
地铁:4号线马厂坝站(直线1.3公里),规划28号线(红桥TOD)
自驾:距绕城高速4公里,光华大道直达青羊新城(8公里)
✅ 配套成熟:
教育:金苹果幼稚园(直线500米)、温江中学(2公里)
商业:前海购物中心(在建)、新光天地(3公里)
生态:江安河公园(直线200米)、非遗博览园(1.5公里)
✅ 价格优势:精装均价1.78万/㎡,对比青羊西(2.5万+)性价比突出

深度评测:自住与投资价值分析
1. 地段潜力
双TOD+双区交界:坐享温江生态+青羊配套,马厂坝TOD(在建)1.3公里
红桥未来社区:成都首批公园社区示范区,江安河生态价值显著
2. 产品力对比
户型设计:
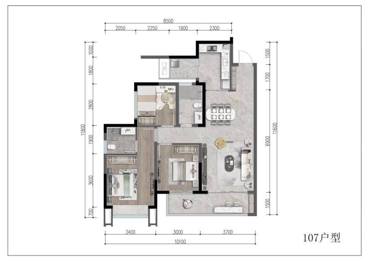
107-128㎡:2T4小高层,适合刚改
143-175㎡:2T2/1T2洋房,改善首选
装修标准:三大件齐全(地暖+新风+中央空调),得房率82-85%
竞品对比:对比光华新城楼盘(1.9-2.2万/㎡),价格低10-15%
3. 硬伤提示
地铁需接驳:4号线步行1.3公里,依赖社区巴士
商业待兑现:前海购物中心在建,近期依赖3公里外商圈
【项目总平】
82亩地块江沄阁1/2/4/7🌃小高层: 107 ㎡、128 ㎡✅ 梯户比:2T4✅ 总层:14层、16层、18层
82亩地块江浔阁8/9/10🌃小高层: 107 ㎡、128 ㎡✅ 梯户比:2T4✅ 总层:17层、18层
99亩地块江湾阁7/10/8/9🏘小洋房:143 ㎡✅梯户比:2T2✅总层:15F、16F🏘小洋房:175㎡✅梯户比:1T2✅总层:10F92亩地块江源阁3/4🏠小高层107-128㎡✅梯户比通2T4户总层14.16.18
【户型鉴赏】
【营销中心】:028-87777213「销售热线」
【置业顾问】:18613205563「微信同步」
【置业顾问】:19983517822「微信同步」
温馨提示:专业一对一热情服务,为了节约您的等待时间,看房请提前致电预约!!!
免责声明:
以上内容仅作为邀约邀请,涉及的图片为部分区域实拍图和美学畅想图,具体内容请以现场公示和合同约定为准;本文部分资料、部分图片来源于网络,如有侵权请联系我们删除。
声明:本文由入驻焦点开放平台的作者撰写,除焦点官方账号外,观点仅代表作者本人,不代表焦点立场。
