【华润阅天府】最新房价及在售户型深度分析-营销中心

搜狐焦点乐山站 2025-09-21 08:51:00
用手机看
扫描到手机,新闻随时看

扫一扫,用手机看文章
更加方便分享给朋友

成都华润阅天府售楼处电话:028-87777213【营销中心】 ☎【置业顾问】:18613205563「微信同步」☎ ☎【置业顾问】:19983517822「微信同步」☎

成都华润阅天府售楼处电话:028-87777213【营销中心】

☎【置业顾问】:18613205563「微信同步」☎

☎【置业顾问】:19983517822「微信同步」☎

成都市规划和自然资源局关于公开征求《〈成都市城市规划管理技术规定(2024)〉 的补充规定》意见的公告,涉及容积率、封窗新规。

一、支持立面公建化,建筑立面统一

为促进建筑立面协调统一,支持住宅立面公建化设计,阳台无论封闭与否,均按照其水平投影面积的 1/2 纳入容积率计算。

二、提升阳台等房屋空间品质

为打造亲近自然的居住空间,满足市民多样化居住需求,阳台、飘窗、以及各类形式的入户花园、空中花园、露台、退台、设备平台、空调板、构造板、结构板、抗震板、开敞式电梯前室、外廊、空腔、镂空、花池等房屋附属空间的水平投影面积不大于该项目住宅计容建筑面积的30%。

三、支持住宅小区设置开敞式风雨连廊

为方便居民室外休息活动,打造适应成都气候的遮风避雨归家路线,鼓励在不影响居民日常生活的前提下,通过设置开敞式风雨连廊,将小区出入口、楼栋出入口、单元出入口、小区内全民健身场所等公共空间相互连接。

开敞式风雨连廊不纳入容积率、建筑密度计算。

中央之地·双核之心

天西绝版洋房

2T2户纯板式·纯南北

户户得房率100%

【区 位】世界都会 矜贵天府成都中心:未来城市新中心西部极核:成渝双城经济圈创新极核大国样板:中国式现代化公园城市先行区

国际天府 成都与世界的超级纽带总部商务区集聚重大产业总投资2526.6亿元集聚高能级世界500强25家经济总量2022年4450亿元位列国家级新区第一方阵

惟此天府奢心 寰阅极核之眼·坐拥天府总部商务区、兴隆湖科学城两大超能板块价值叠加·独占天府公园、鹿溪河生态区两大中央生态公园·紧邻雄心主轴天府大道·270°都会地标集群环绕

天新C区三大教育用地、城市级中央生态绿廊、开放式街巷商业全方位环绕

超级枢纽:地铁1/6/18号线已开通;红莲TOD/秦皇寺TOD、城市候机楼、19号线二期/S5眉山线/16号线一期(在建中);26号线(远期规划)

国际商圈:招商花园城MALL、人字绿廊商业带、时代公园商业中心

新贵教育:元音小学/中学、天新第一小学、成都实验小学、天府中学、麓湖小学、乐盟国际学校

优渥医疗:万达国际医院、四川华西天府医院、天新妇女儿童医院、华西牙科总部

打造143亩天西迭新大作,力邀六大国际大师团队操刀,以前所未见的迭创“全景舱”设计,筑写可穿越市场周期的作品,启序天府全新奢阶生活。

力邀gad杰地设计、JTL(新加坡)规划与景观设计事务所、于舍设计 (Yu Studio)、近境制作、Z-WORK真工设计、LANDAU朗道国际设计六大国际大师团队操刀,融合多年打造国际精品奢宅的经验,凝练世界前沿审美与艺术理念,以精湛技艺和非凡巧思,雕琢可穿越市场周期的天西高阶迭新大作。

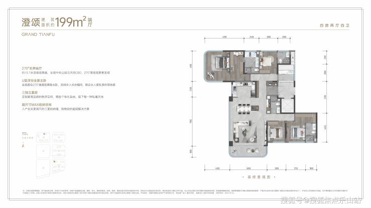
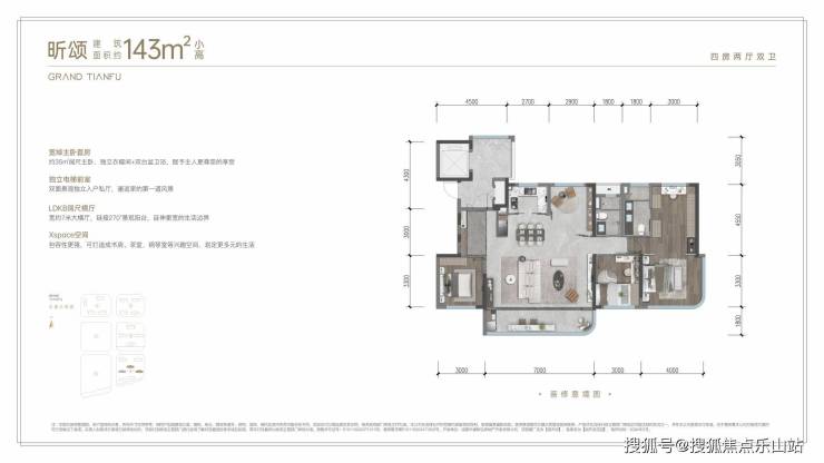
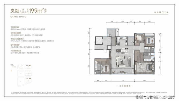
领阅天际观邸主力建面约143-252㎡领阅天际观邸

户型

成都华润阅天府售楼处电话:028-87777213【营销中心】

☎【置业顾问】:18613205563「微信同步」☎

☎【置业顾问】:19983517822「微信同步」☎

___欢迎来电咨询丨专业一对一热情服务丨看房需提前预约

——如有侵权请联系我们删帖——

温馨提示:为了节约您的等待时间,看房请提前致电售楼处预约!!!

声明:本文由入驻焦点开放平台的作者撰写,除焦点官方账号外,观点仅代表作者本人,不代表焦点立场。