干货!海天假日半岛三期户型解析!
扫描到手机,新闻随时看
扫一扫,用手机看文章
更加方便分享给朋友
海天假日半岛位于岷江东岸,项目是一个不折不扣的江景地产。海天假日半岛目前已经开发了三期,其中一期、二期早已交房,业主陆续入住,小区居住环境也是看得见;三期现在部分楼栋也是准现房(部分楼栋已封顶)呈现,主体可见,预计将在明年交房。目前,海天假日半岛主要在售的房源也是三期。除此以外,海天四期也将在不久后登场,醉美江景房,值得期待。
据了解,海天假日半岛三期现在的均价在5600元/㎡左右,中庭三房火热在售,不同户型,可满足不同购房家庭的需要。以下几款户型是海天三期热销的产品,一起来品鉴一下。
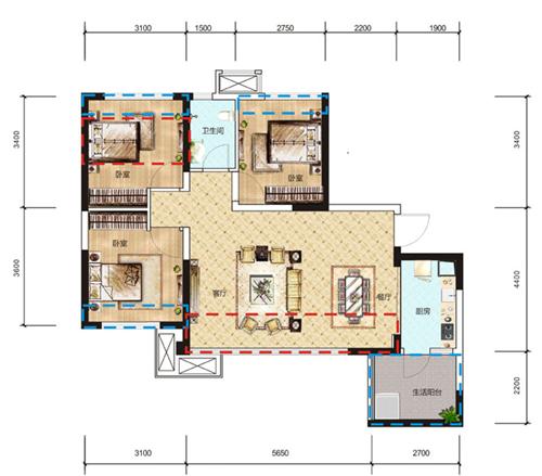
海天假日半岛3期户型图D1
三室两厅双卫 建面约92.58㎡

户型简析:独立入户花园,有着实用入户面积;双厅有着4米开间,外带观景阳台,正看中庭,观景自在;户型动静分区,活动区、居住区互不干扰,居住舒适度高;双卫设计,主卧室带独立卫浴,方便生活起居。阳光三室,适合三口之家居住。
海天假日半岛3期户型图B1
三室两厅双卫 建面约85.55㎡

户型简析:标准三室户型,户型方正无异型,空间布局合理,空间利用率也比较高。户型干湿分区,洗手区和卫生间相互分开,使用方便;大厨房设计,外接生活阳台,生活极其方便;此房也是正看中庭,卧室、客厅均观景,视野比较开阔。
海天假日半岛3期户型图D2
三室两厅双卫 建面约74.05㎡

户型简析:横厅户型,客厅、餐厅面积随意切换,小三室也有大享受。此房户型方正,功能齐全,有着实用的空间布局;采光面宽,空空通风采光,居住舒适度高;此户型动线合理、水区集中,有着非常好的利用率。此房是刚需购房者的不二之选,价格很美丽。(乐山房产网)
声明:本文由入驻焦点开放平台的作者撰写,除焦点官方账号外,观点仅代表作者本人,不代表焦点立场。
