【新希望天屹】最新房价及在售户型深度分析-营销中心

搜狐焦点乐山站 2025-09-18 07:01:00
用手机看
扫描到手机,新闻随时看

扫一扫,用手机看文章
更加方便分享给朋友

成都 新希望天屹【营销中心】:028-87777213「销售热线」 【置业顾问】:18613205563「微信同步」 【置业顾问】:19983517822「微信同步」

成都 新希望天屹【营销中心】:028-87777213「销售热线」

【置业顾问】:18613205563「微信同步」

【置业顾问】:19983517822「微信同步」

东安湖中央居住区2.0低密纯居洋房——新希望天屹价值解析

建面约116-143㎡新派隐逸奢宅 | 千亿国企×品质民企联袂钜献

成都市规划和自然资源局关于公开征求《〈成都市城市规划管理技术规定(2024)〉 的补充规定》意见的公告,涉及容积率、封窗新规。

一、支持立面公建化,建筑立面统一

为促进建筑立面协调统一,支持住宅立面公建化设计,阳台无论封闭与否,均按照其水平投影面积的 1/2 纳入容积率计算。

二、提升阳台等房屋空间品质

为打造亲近自然的居住空间,满足市民多样化居住需求,阳台、飘窗、以及各类形式的入户花园、空中花园、露台、退台、设备平台、空调板、构造板、结构板、抗震板、开敞式电梯前室、外廊、空腔、镂空、花池等房屋附属空间的水平投影面积不大于该项目住宅计容建筑面积的30%。

三、支持住宅小区设置开敞式风雨连廊

为方便居民室外休息活动,打造适应成都气候的遮风避雨归家路线,鼓励在不影响居民日常生活的前提下,通过设置开敞式风雨连廊,将小区出入口、楼栋出入口、单元出入口、小区内全民健身场所等公共空间相互连接。

开敞式风雨连廊不纳入容积率、建筑密度计算。

核心价值亮点

稀缺低密纯洋房社区

容积率仅2.0,10栋10-16层纯洋房,1T2/2T2梯户比,35%绿化率+东干水渠滨河绿道贯穿,内外双园林景观。

区域唯一下沉式宝格丽主题会所,配备健身房、书吧等高端配套。

国企+品质房企双保障

开发商:成都经开发展集团(千亿国企)&新希望地产(世界500强),已合作开发三个品质项目,交付力与产品力双重背书。

东安湖核心首熟区

坐拥东安新城最优城市界面,15分钟生活圈覆盖商业、教育、医疗、生态全维配套。

交通配套

地铁:距2号线书房站约800米,远期规划11/22/25号线(具体以官方公示为准)。

路网:紧邻蜀都大道、驿都大道、桃都大道等“四横三纵”主干道,快速连通全城。

全维配套分析

商业

龙湖东安天街(约500米)、新城吾悦广场(约600米)、万达广场(约2.5公里)。

教育

全龄优质教育资源:向阳桥幼儿园/小学/中学、经开区实验中学(教科院领办)、成都市实验小学(和雅校区/乐雅校区)。

高等学府:四川师范大学成龙校区、四川财经职业学院。

医疗

华西医院龙泉医院(约1.6公里)、成都中医药大学附属医院龙泉医院(约3.5公里)、龙泉驿妇幼保健院(约2公里)。

生态

东安湖公园、驿马河公园、龙泉山城市森林公园环伺。

户型深度解析

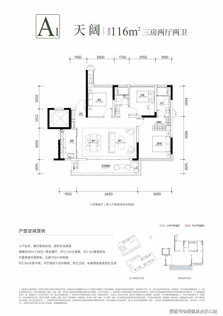
A户型 116㎡ 三房两厅两卫

核心优势:片区唯一120㎡以下洋房,婚房/首改优选。

亮点:

约12.6米南向大面宽,全明南北通透;

约44㎡LDKG一体化横厅+约6.85米南向景观阳台;

主卧开间约3.8米,配备步入式衣帽间。

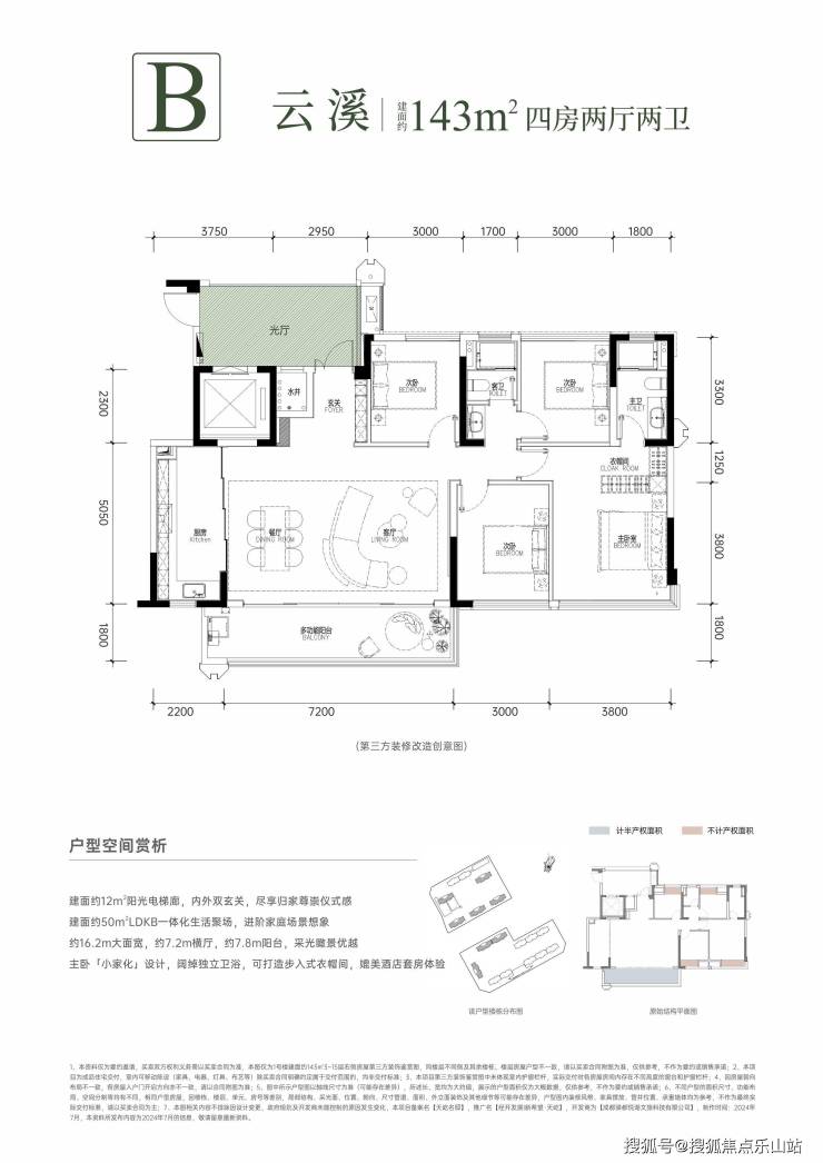
B户型 143㎡ 四房两厅两卫

核心优势:区域最大面宽改善户型,对标一线豪宅配置。

亮点:

独立光厅入户带梯控,私密性极佳;

约16.2米四开间朝南,约7.2米横厅衔接阳台;

约27㎡豪华主卧套房,搭配步入式衣帽间。

【越级143㎡】四房两厅双卫

成都 新希望天屹【营销中心】:028-87777213「销售热线」

【置业顾问】:18613205563「微信同步」

【置业顾问】:19983517822「微信同步」

温馨提示:专业一对一热情服务,为了节约您的等待时间,看房请提前致电预约!!!

免责声明:

以上内容仅作为邀约邀请,涉及的图片为部分区域实拍图和美学畅想图,具体内容请以现场公示和合同约定为准;本文部分资料、部分图片来源于网络,如有侵权请联系我们删除。

声明:本文由入驻焦点开放平台的作者撰写,除焦点官方账号外,观点仅代表作者本人,不代表焦点立场。