【恒大天府半岛】售楼处专线预约看房—首页网站-销售情况
扫描到手机,新闻随时看
扫一扫,用手机看文章
更加方便分享给朋友
成都 恒大天府半岛【营销中心】:028-84385818「销售热线」
【置业顾问】:18613205563「微信同步」
【置业顾问】:19983517822「微信同步」
又出新政
自2026年1月1日至2027年12月31日,对出售自有住房并在现住房出售后1年内在市场重新购买住房的纳税人,对其出售现住房已缴纳的个人所得税予以退税优惠。其中,新购住房金额大于或等于现住房转让金额的,全部退还已缴纳的个人所得税;新购住房金额小于现住房转让金额的,按新购住房金额占现住房转让金额的比例退还出售现住房已缴纳的个人所得税。
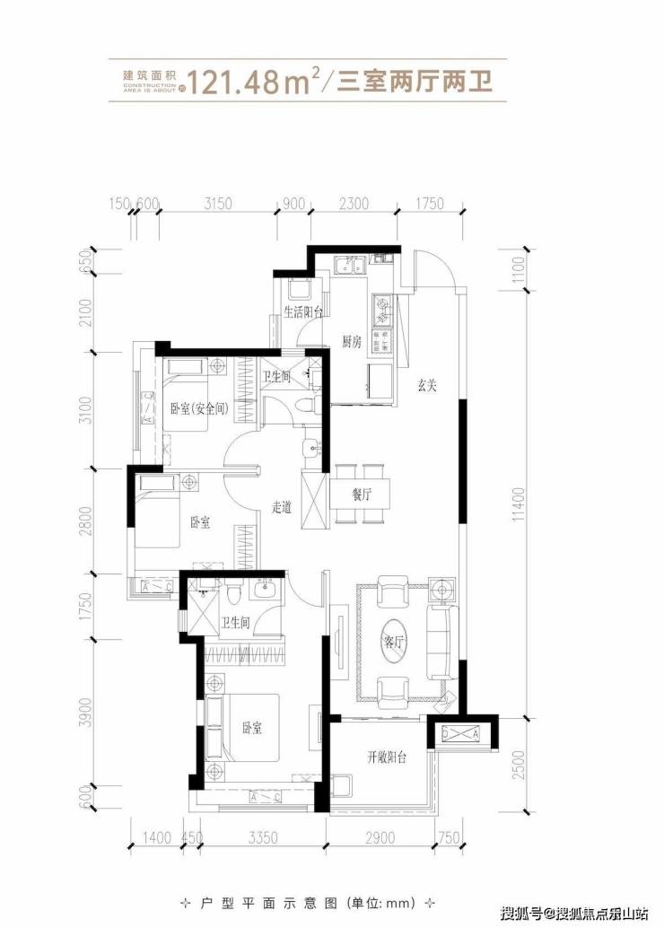
天府半岛 | 网红神盘驾到 13000元/㎡起 抢入天新绝佳机会
麓湖旁三房双卫 首付20余万买进类别:高层 梯户比:3T4
建面约120-140㎡臻装美宅 诚意登记中
占据绝佳地段 超阔视野无遮挡7期在售楼栋位于一街之隔规划生态自然公园,家门口的活力健身场地,下楼漫享生活惬意,推窗即自然风景。
超阔三房科学动静分区,全屋飘窗,阔尺会客厅与270°景观阳台相连,室内空间宽敞明亮;星级套房主卧私享静谧,次卧瞰景阳台,拓宽更多居家场景;
奢阔四房餐厅厨阳台一体化设计,会客空间尊崇大气;星级套房主卧,独立衣帽间私密自成天地。
成都 恒大天府半岛【营销中心】:028-84385818「销售热线」
【置业顾问】:18613205563「微信同步」
【置业顾问】:19983517822「微信同步」
___欢迎来电咨询丨专业一对一热情服务丨看房需提前预约
——如有侵权请联系我们删帖——
免责声明:
以上内容仅作为邀约邀请,涉及的图片为部分区域实拍图和美学畅想图,具体内容请以现场公示和合同约定为准;本文部分资料、部分图片来源于网络,如有侵权请联系我们删除。
声明:本文由入驻焦点开放平台的作者撰写,除焦点官方账号外,观点仅代表作者本人,不代表焦点立场。
