成都中粮武侯瑞府什么档次?售楼电话-最新项目特惠一键咨询

搜狐焦点乐山站 2025-10-16 13:01:00
用手机看
扫描到手机,新闻随时看

扫一扫,用手机看文章
更加方便分享给朋友

【营销中心】:028-87777213「销售热线」 【置业顾问】:18613205563「微信同步」 【置业顾问】:19983517822「微信同步」 温馨提示:专业一对一热情服务,为了节约您的等待时间,看房请提前致电预约!!!

【营销中心】:028-87777213「销售热线」

【置业顾问】:18613205563「微信同步」

【置业顾问】:19983517822「微信同步」

温馨提示:专业一对一热情服务,为了节约您的等待时间,看房请提前致电预约!!!

免责声明:

以上内容仅作为邀约邀请,涉及的图片为部分区域实拍图和美学畅想图,具体内容请以现场公示和合同约定为准;本文部分资料、部分图片来源于网络,如有侵权请联系我们删除。

【核心价值】

主城稀缺墅院

63亩纯低密住区,容积率仅1.09

武侯新城核心区位,距地铁3号线1公里

中粮集团TOP级"瑞府"产品线

立体交通网络

地铁3号线双凤桥站1公里

地铁9号线武青南路站1.2公里

三环路/武侯大道快速通达全城

纯墅区品质住区

220-260㎡天地合院(总价1200万起)

207-260㎡上下叠产品(总价670万起)

独立电梯入户,最高5.7米地下室层高

项目参数:

▸ 梯户比:1T1/1T2

▸ 绿化率:30%

▸ 车位比:1:2.4

▸ 物业费:5.2元/㎡

▸ 交付标准:清水现房

【配套体系】

教育:西川中学(1.5公里)、龙江路小学(2公里)

商业:武侯万达(2公里)、大悦城(3公里)

医疗:四川省妇幼保健院(3公里)

生态:永康森林公园(1公里)

【项目总平图】

【产品信息】

▶ 传世合院:

220-250㎡五至六房

40-260㎡私属花园

独立电梯厅设计

▶ 臻装叠墅:

207-260㎡四至五房

30-160㎡私家庭院

3.3-3.5米舒适层高

【传世孤品 天地合院】

独门独院,悠闲自赏,照见一方天地自然

独立电梯串连六重空间,随心即达各生活场域

奢阔主卧尊崇而居,全景阳台处处清闲

打造成为影音室、健身房、会客厅....游刃有余收藏全家志趣

花园里的会客厅,在自然中畅聊,欢笑与风景相融

【户型鉴赏】

[独立天地院子]

独门独院,悠闲自赏,照见一方天地自然

[奢华私家电梯厅]

独立电梯串连六重空间,随心即达各生活场域

[主卧总统套房]

奢阔主卧尊崇而居,全景阳台处处清闲

[负一层空间]

打造成为影音室、健身房、会客厅....游刃有余收藏全家志趣

[屋顶会客厅]

花园里的会客厅,在自然中畅聊,欢笑与风景相融

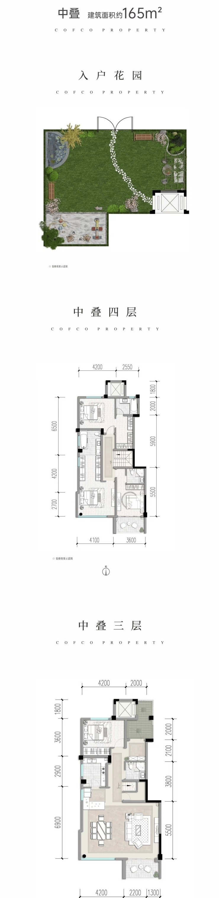
[独立花园入户]

中粮瑞府匠心著造,实现独特居住创想,让中叠也拥有院子

[奢华私家电梯厅]

独立电梯设计,一步即达归家,尽享私密与尊崇

[宽约7.7M阔尺横厅]

光影随处流淌,客厅连接露台,直迎风景入怀

[全套房设计]

独立安静休憩空间,盛载每一寸悠然时光

【营销中心】:028-87777213「销售热线」

【置业顾问】:18613205563「微信同步」

【置业顾问】:19983517822「微信同步」

温馨提示:专业一对一热情服务,为了节约您的等待时间,看房请提前致电预约!!!

免责声明:

以上内容仅作为邀约邀请,涉及的图片为部分区域实拍图和美学畅想图,具体内容请以现场公示和合同约定为准;本文部分资料、部分图片来源于网络,如有侵权请联系我们删除。

声明:本文由入驻焦点开放平台的作者撰写,除焦点官方账号外,观点仅代表作者本人,不代表焦点立场。