恒大天府半岛三叶草(成都)房价透明公示-户型分析-优惠申请-营销热线
扫描到手机,新闻随时看
扫一扫,用手机看文章
更加方便分享给朋友
成都 恒大天府半岛三叶草【营销中心】:028-87777213「销售热线」
【置业顾问】:18613205563「微信同步」
【置业顾问】:19983517822「微信同步」
还有半个多月,2025年就要画上句号了。
回顾这一年的楼市,降温成为贯穿全年的关键词,即便全年数据尚未完全出炉,但当前市场的寒意已清晰可见:
根据统计数据,近一年成都房价累计下跌约16.9%,中心城区新房成交量较去年同期仍有近万套的差距,全年新房成交下滑几乎已成定局。
天府半岛·三叶草以“绝版江景+超高层地标+现房品质”为核心竞争力,兼顾都会繁华与自然静谧,是成都200㎡+顶豪市场中兼具自住价值与资产配置意义的标杆之作。
核心价值:绝版江湾头排,世界级滨水奢宅
稀缺江景资源:独占约3公里锦江湾头排,三面环江,形成“玉带环腰”格局,视野无遮挡,媲美全球一线城市滨水豪宅。
超高层地标建筑:44F玻璃幕墙+铝板立面,现代艺术感与自然江景交融,成为成都锦江畔标志性建筑。
现房交付:所见即所得,品质无需等待,交房即交证,资产安全性高。
区位与交通
城市核心区位:位于天府中央商务区(天府新区),紧邻锦江生态带,属成都重点发展的高价值板块。
立体交通网络:
地铁:1号线(广福站)、18号线(锦城广场站),直线距离约800米。
主干道:天府大道、梓州大道、剑南大道,快速通达全城。
高铁/机场:天府站(约8公里)、双流机场(约20公里)、天府国际机场(约30公里)。
配套资源
商业
3公里范围内:三利爱琴海购物公园、红星美凯龙等大型商业综合体。
5公里直达麓湖生态城商业集群(麓坊中心、麓湖水城等)。
医疗
四川大学华西天府医院(三级甲等,约3公里)。
四川省第二人民医院天府院区(约5公里)。
教育
社区内:金苹果幼儿园(已开学)、规划公立小学及中学。
天府新区A学区:覆盖天府七中、天府四中等优质学校,多校划片保障教育资源。

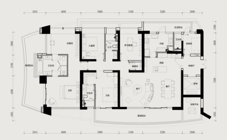
户型解析
建面约294㎡(5室5卫)
格局亮点:三面临江,全屋7阳台设计,每个房间均享江景。
客餐厅:约47㎡+33㎡超级阳台,三面落地窗,视野震撼。
主卧套房:约48㎡,双衣帽间+观江阳台,奢华尺度。
灵活空间:次卧可改儿童套房,书房+储藏间可变第三套间。
得房率超90%,赠送面积约45㎡。
建面约274㎡(5室4卫)
核心优势:约65㎡全景舱主卧,18㎡观江阳台,私密性极佳。
客餐厅:8.3米开间,连接28㎡巨幕阳台,江景视野开阔。
功能布局:双套房设计,书房可变第三卧室,动线清晰。
得房率85%,赠送面积约38㎡。


精装标准
全屋石材铺装,深灰色系轻奢风格。
国际一线品牌厨电、全屋智能系统。


市场对标与价值潜力
稀缺性:成都近年滨江住宅用地近乎绝版,天府半岛·三叶草为锦江畔最后的大规模江景住区。
竞品对比:
麓湖生态城同面积段总价900万+,玄鸟湾二期套均1400万+,本项目质价比突出。
同区域新房去化周期仅4.18个月,供需关系紧张。
资产属性:天府中央商务区规划超2800亿产业投资,高净值人群聚集,高端住宅保值增值潜力显著。


成都 恒大天府半岛三叶草【营销中心】:028-87777213「销售热线」
【置业顾问】:18613205563「微信同步」
【置业顾问】:19983517822「微信同步」
声明:本文由入驻焦点开放平台的作者撰写,除焦点官方账号外,观点仅代表作者本人,不代表焦点立场。
