成都新盘[广都鑫中心]首页网站-楼盘详情-最新利率-销售中心
扫描到手机,新闻随时看
扫一扫,用手机看文章
更加方便分享给朋友
广都鑫中心【营销中心】:028-87777213「销售热线」
【置业顾问】:18613205563「微信同步」
【置业顾问】:19983517822「微信同步」
——天府中轴稀缺小户,双地铁+酒店托管+高线公园
核心价值分析
稀缺区位
天府大道中轴唯一在售小面积(水电气三通),金融城、新川科技园、天府中央商务区“黄金三角”交汇,吸附高净值人流。
无竞品优势:周边楼盘无同类低总价、可托管产品,投资门槛低。
双地铁上盖
1号线华阳站300米,18号线海昌路站400米,快速串联主城与天府新区。
酒店托管收益
委托锦江国际(亚洲第一酒店集团)旗下“欧暇地中海”运营,保底收益+分红:
装修期8个月+培育期6个月(无收益);
第7月起享保底30元/㎡/月+运营五五分成,月均收益约3800-4000元。
独特设计
每层600-700㎡高线公园,十户专享7-9㎡赠送阳台,稀缺生态附加值。
交通
地铁:1号线华阳站300米、18号线海昌路站400米
公交:503/504/T205等20条线路
路网:五纵(剑南/益州/天府/梓州大道、成自泸高速)+四横(三环/绕城/华阳/麓山大道)
商业
自持商业:1-4层3万㎡上海协星星光商业,-1层盒马鲜生,-2至-4层1661个车位
周边:三利广场(在建)、家乐福、金地70万方综合体、山姆会员店、红星美凯龙等
医疗
天府新区人民医院、四川石油总医院、玛利亚妇产儿童医院、安琪儿国际医院等
生态
海昌极地海洋公园、南湖梦幻岛、南湖湿地公园
教育
全龄段覆盖:金苹果幼儿园、天府四小/五小、天府实验小学/实验中学/实验外国语学校
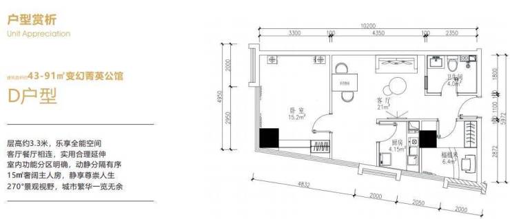
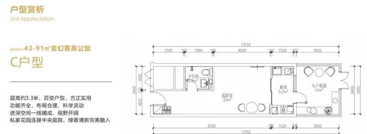
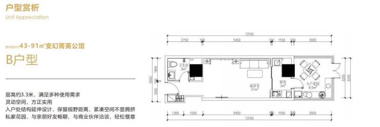
户型亮点
灵动小户:主力小面积段,低总价门槛,清水交付可自由改造。
空间增值:部分户型享7-9㎡赠送阳台,实用率高于周边竞品。
适配多元需求:自住/投资两宜,托管模式降低持有成本。
✅【多变户型】
广都鑫中心【营销中心】:028-87777213「销售热线」
【置业顾问】:18613205563「微信同步」
【置业顾问】:19983517822「微信同步」
温馨提示:专业一对一热情服务,为了节约您的等待时间,看房请提前致电预约!!!
免责声明:
以上内容仅作为邀约邀请,涉及的图片为部分区域实拍图和美学畅想图,具体内容请以现场公示和合同约定为准;本文部分资料、部分图片来源于网络,如有侵权请联系我们删除。
声明:本文由入驻焦点开放平台的作者撰写,除焦点官方账号外,观点仅代表作者本人,不代表焦点立场。
