【新希望天屹】首页网站-房价|优惠|预约看房-销售部

搜狐焦点乐山站 2025-09-10 09:32:00
用手机看
扫描到手机,新闻随时看

扫一扫,用手机看文章
更加方便分享给朋友

成都 新希望天屹【营销中心】:028-87777213「销售热线」 【置业顾问】:18613205563「微信同步」 【置业顾问】:19983517822「微信同步」

成都 新希望天屹【营销中心】:028-87777213「销售热线」

【置业顾问】:18613205563「微信同步」

【置业顾问】:19983517822「微信同步」

东安湖中央居住区2.0低密纯居洋房——新希望天屹价值解析

建面约116-143㎡新派隐逸奢宅 | 千亿国企×品质民企联袂钜献

核心价值亮点

稀缺低密纯洋房社区

容积率仅2.0,10栋10-16层纯洋房,1T2/2T2梯户比,35%绿化率+东干水渠滨河绿道贯穿,内外双园林景观。

区域唯一下沉式宝格丽主题会所,配备健身房、书吧等高端配套。

国企+品质房企双保障

开发商:成都经开发展集团(千亿国企)&新希望地产(世界500强),已合作开发三个品质项目,交付力与产品力双重背书。

东安湖核心首熟区

坐拥东安新城最优城市界面,15分钟生活圈覆盖商业、教育、医疗、生态全维配套。

交通配套

地铁:距2号线书房站约800米,远期规划11/22/25号线(具体以官方公示为准)。

路网:紧邻蜀都大道、驿都大道、桃都大道等“四横三纵”主干道,快速连通全城。

全维配套分析

商业

龙湖东安天街(约500米)、新城吾悦广场(约600米)、万达广场(约2.5公里)。

教育

全龄优质教育资源:向阳桥幼儿园/小学/中学、经开区实验中学(教科院领办)、成都市实验小学(和雅校区/乐雅校区)。

高等学府:四川师范大学成龙校区、四川财经职业学院。

医疗

华西医院龙泉医院(约1.6公里)、成都中医药大学附属医院龙泉医院(约3.5公里)、龙泉驿妇幼保健院(约2公里)。

生态

东安湖公园、驿马河公园、龙泉山城市森林公园环伺。

户型深度解析

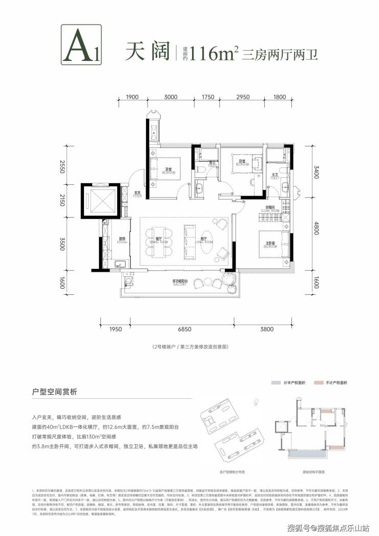
A户型 116㎡ 三房两厅两卫

核心优势:片区唯一120㎡以下洋房,婚房/首改优选。

亮点:

约12.6米南向大面宽,全明南北通透;

约44㎡LDKG一体化横厅+约6.85米南向景观阳台;

主卧开间约3.8米,配备步入式衣帽间。

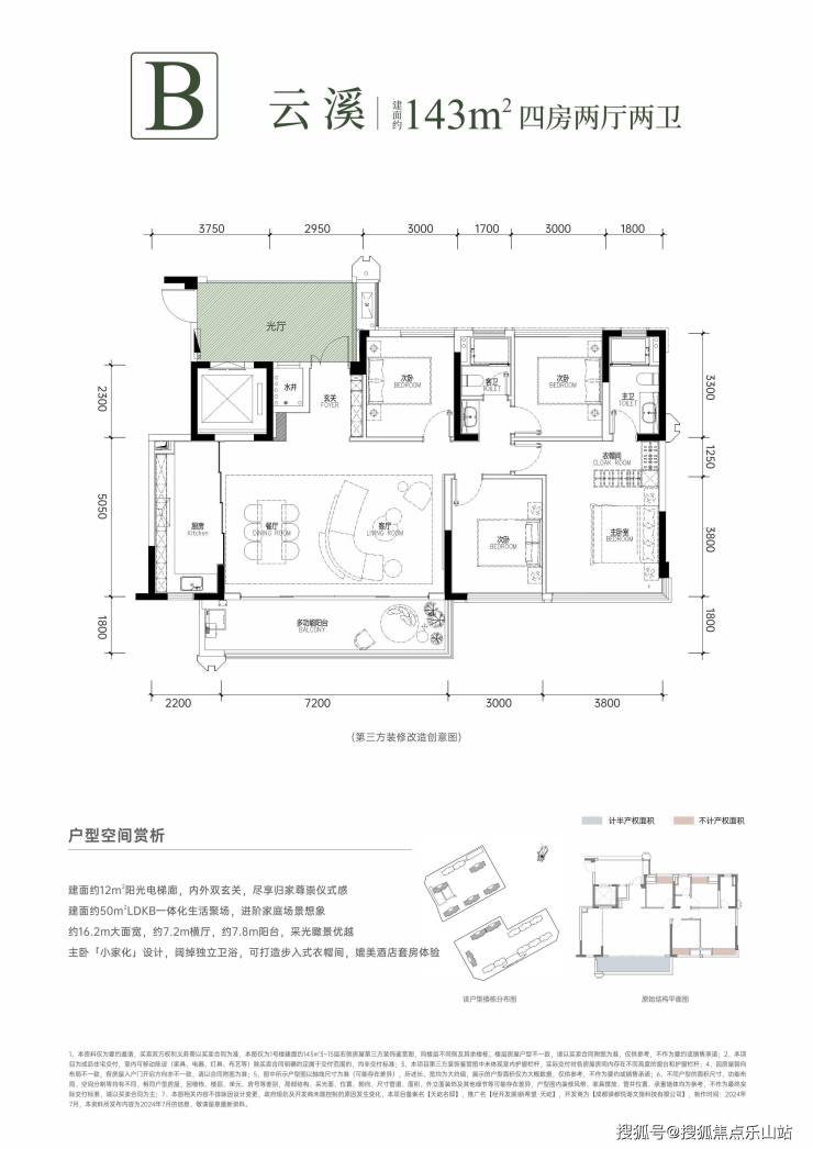
B户型 143㎡ 四房两厅两卫

核心优势:区域最大面宽改善户型,对标一线豪宅配置。

亮点:

独立光厅入户带梯控,私密性极佳;

约16.2米四开间朝南,约7.2米横厅衔接阳台;

约27㎡豪华主卧套房,搭配步入式衣帽间。

【越级143㎡】四房两厅双卫

成都 新希望天屹【营销中心】:028-87777213「销售热线」

【置业顾问】:18613205563「微信同步」

【置业顾问】:19983517822「微信同步」

温馨提示:专业一对一热情服务,为了节约您的等待时间,看房请提前致电预约!!!

免责声明:

以上内容仅作为邀约邀请,涉及的图片为部分区域实拍图和美学畅想图,具体内容请以现场公示和合同约定为准;本文部分资料、部分图片来源于网络,如有侵权请联系我们删除。

声明:本文由入驻焦点开放平台的作者撰写,除焦点官方账号外,观点仅代表作者本人,不代表焦点立场。