成都【爱家春和凤鸣】金秋钜惠!2025特价房源限时抢购,售楼热线
扫描到手机,新闻随时看
扫一扫,用手机看文章
更加方便分享给朋友
爱家春和凤鸣【营销中心】:028-87777213「销售热线」
【置业顾问】:18613205563「微信同步」
【置业顾问】:19983517822「微信同步」
成都市规划和自然资源局关于公开征求《〈成都市城市规划管理技术规定(2024)〉 的补充规定》意见的公告,涉及容积率、封窗新规。
一、支持立面公建化,建筑立面统一
为促进建筑立面协调统一,支持住宅立面公建化设计,阳台无论封闭与否,均按照其水平投影面积的 1/2 纳入容积率计算。
二、提升阳台等房屋空间品质
为打造亲近自然的居住空间,满足市民多样化居住需求,阳台、飘窗、以及各类形式的入户花园、空中花园、露台、退台、设备平台、空调板、构造板、结构板、抗震板、开敞式电梯前室、外廊、空腔、镂空、花池等房屋附属空间的水平投影面积不大于该项目住宅计容建筑面积的30%。
三、支持住宅小区设置开敞式风雨连廊
为方便居民室外休息活动,打造适应成都气候的遮风避雨归家路线,鼓励在不影响居民日常生活的前提下,通过设置开敞式风雨连廊,将小区出入口、楼栋出入口、单元出入口、小区内全民健身场所等公共空间相互连接。
开敞式风雨连廊不纳入容积率、建筑密度计算。

一、项目基础信息
项目名称:爱家春和凤鸣;项目占地:约36亩;项目总栋:8栋住宅;在售产品:98/109/107/116㎡;总层高:17/25层
容积率:2.5;绿化率:30%;物业:成都市泰达物业管理有限公司;物业费:2.1元/㎡/月;车位比:1:1.44;梯户比:2T2/2T3;装修情况:清水;交房时间:预计2026年6月
项目产品:纯三房产品,首开2T2小高层17F:116㎡

项目配套价值
1、地铁双线•下楼即至,步行友好的高效生活配套
步行即至的凤溪河地铁站,享受地铁4号线、19号线双线
2、三轴一高快捷路网,高效出行•无界全城
邻凤溪大道,光华8线,光华大道,和成温邛高速联通,全城皆能快速直抵。
3、光华活力核芯•繁华俱揽,同频一线商业能级
让逛街购物也能成为下班途中的顺道之旅。楼下就是大润发,闲逛之间就已到家。
繁华近享新光天地,合生汇,伊藤洋华堂,永辉超市等,每天逛得不重样,生活时刻保鲜。
4、一河三公园自然滋养,静赏时光漫步
茶余饭后的散步间,即抵杨柳河生态走廊,清风拂面,静享怡然。周边光华公园,凤栖湖中央公园,温江公园环伺,让生活回归自然。
5、书香诗礼•优质学府领衔,让成长天生与众不同
川师温江附属学校,东一杨柳河小学,嘉祥外国语学校等,雄厚的师资配置,开启孩子们智慧的大门。西南财经大学,成都师范学院等大学高校,营造浓郁的诗书氛围,让孩子们更主动的去享受知识。
6、安心守护•健康陪伴,给予家人更好的医靠
温江区中医院,成都市第五人民医院等,为健康生活守护。

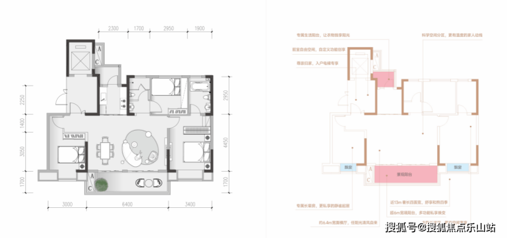
B1:约116㎡三室两厅双卫(清水)
电梯独立入户、纯板式结构、南北通透、得房率高

爱家春和凤鸣【营销中心】:028-87777213「销售热线」
【置业顾问】:18613205563「微信同步」
【置业顾问】:19983517822「微信同步」
温馨提示:专业一对一热情服务,为了节约您的等待时间,看房请提前致电预约!!!
免责声明:
以上内容仅作为邀约邀请,涉及的图片为部分区域实拍图和美学畅想图,具体内容请以现场公示和合同约定为准;本文部分资料、部分图片来源于网络,如有侵权请联系我们删除。
声明:本文由入驻焦点开放平台的作者撰写,除焦点官方账号外,观点仅代表作者本人,不代表焦点立场。
