2025- 中海湖光玖里-成都(中海湖光玖里)指定网站|营销热线
扫描到手机,新闻随时看
扫一扫,用手机看文章
更加方便分享给朋友
中海湖光玖里【营销中心】:028-87777213「销售热线」
【置业顾问】:18613205563「微信同步」
【置业顾问】:19983517822「微信同步」
温馨提示:专业一对一热情服务,为了节约您的等待时间,看房请提前致电预约!!!
免责声明:
以上内容仅作为邀约邀请,涉及的图片为部分区域实拍图和美学畅想图,具体内容请以现场公示和合同约定为准;本文部分资料、部分图片来源于网络,如有侵权请联系我们删除。
成都· 天府新区·麓湖公园区
成都天府新区麓湖板块作为高端居住标杆,近年来土地供应稀缺,新房门槛居高不下。央企中海打造的湖光玖里以8-17层纯低密洋房业态入市,成为板块内少有的小户型改善项目。本文将解析其核心价值与通勤优势,为购房者提供参考。对比麓湖板块二手房(高层均价3.9万/㎡起)及在售新房(总价700万+),湖光玖里以中小面积段降低上车门槛,同时保持低密纯洋房品质,填补市场空白。

项目核心亮点
地段黄金三角
项目位于麓湖公园区、中央法务区、中央商务区交汇处,直线距离麓湖生态城仅200米,红石公园一街之隔。周边3公里内覆盖:
商业:麓湖水镇、山姆会员店(车行2.5公里)、在建伊藤旗舰店;
交通:天府大道、梓州大道双主轴,距地铁6号线昌公堰站(建设中)约1.8公里;
教育:天府七中、元音中小学等优质学府。
低密纯洋房社区
容积率仅2.0,规划15栋8-17层洋房,主力户型102-143㎡,均为板式结构。其中102㎡为板块稀缺的1T2小洋房,总价门槛较周边同类产品更低。
主城通勤优势
项目距金融城约15公里(天府大道车程),科学城约8公里,适合城南高净值人群。周边3大TOD(麓湖东、昌公堰、青岛路)规划中,未来轨道交通覆盖力进一步提升。



人文聚落:麓湖4A艺展中心、雪莲堂美术馆、省博物馆(规划中)、天府大剧院(规划中)
跃级花园洋房,全面超越的高配户型
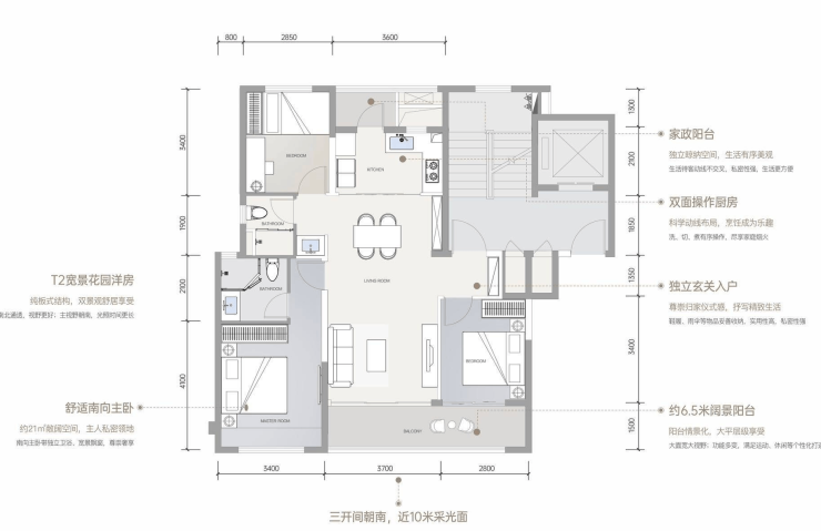
建面约102㎡板式花园洋房
市场稀缺8-11层洋房,最后购入麓湖洋房的机会

【T2宽景洋房】纯板式结构,南北通透、双景观视野
【约6.5m阳台】大面宽、大视野,大平层级的观景享受
【约40㎡竖厅】利用率更高,生活动线流畅
【南北双阳台】南北通透,独立晾纳,私密性强
建面约129㎡4+X创变四房
130㎡内唯一套4+X多功能空间,功能性最强产品

【X创变空间】多功能空间,满足家庭各阶段要求
【四开间朝南】约13.6米采光面,通风采光全升级
【LDKB社交】餐客厅连接书房阳台,一体化空间秩序,迭新生活场景
【约6.9米景观阳台】超大面宽,享巨幕风景
【三房带阔景飘窗】提升空间利用,可拓展功能空间,生活大有所享
建面约143㎡阔尺横厅四房
市场143㎡产品主功能区尺寸最大产品

【LDKB社交厅】约6.9米大面宽客餐厅与厨房、阳台无界连通
【约8.5m宽景阳台】270度广角视野,约1.8m进深,塑造花园梦
【五开间朝南】约15.9m采光面,超宽屏尺度,无遮挡视野;
【约26㎡大主卧】私享独立卫浴、衣帽间,双面观景享度假式生活
【灵动创变空间】定制化空间,满足家庭各个阶段的需求,书房、琴室、娱乐室随心布局
【营销中心】:028-87777213「销售热线」
【置业顾问】:18613205563「微信同步」
【置业顾问】:19983517822「微信同步」
温馨提示:专业一对一热情服务,为了节约您的等待时间,看房请提前致电预约!!!
免责声明:
以上内容仅作为邀约邀请,涉及的图片为部分区域实拍图和美学畅想图,具体内容请以现场公示和合同约定为准;本文部分资料、部分图片来源于网络,如有侵权请联系我们删除。
声明:本文由入驻焦点开放平台的作者撰写,除焦点官方账号外,观点仅代表作者本人,不代表焦点立场。
