【爱家春和凤鸣】最新房价及在售户型深度分析-营销中心

搜狐焦点乐山站 2025-09-19 10:05:00
用手机看
扫描到手机,新闻随时看

扫一扫,用手机看文章
更加方便分享给朋友

爱家春和凤鸣【营销中心】:028-87777213「销售热线」 【置业顾问】:18613205563「微信同步」 【置业顾问】:19983517822「微信同步」

爱家春和凤鸣【营销中心】:028-87777213「销售热线」

【置业顾问】:18613205563「微信同步」

【置业顾问】:19983517822「微信同步」

成都市规划和自然资源局关于公开征求《〈成都市城市规划管理技术规定(2024)〉 的补充规定》意见的公告,涉及容积率、封窗新规。

一、支持立面公建化,建筑立面统一

为促进建筑立面协调统一,支持住宅立面公建化设计,阳台无论封闭与否,均按照其水平投影面积的 1/2 纳入容积率计算。

二、提升阳台等房屋空间品质

为打造亲近自然的居住空间,满足市民多样化居住需求,阳台、飘窗、以及各类形式的入户花园、空中花园、露台、退台、设备平台、空调板、构造板、结构板、抗震板、开敞式电梯前室、外廊、空腔、镂空、花池等房屋附属空间的水平投影面积不大于该项目住宅计容建筑面积的30%。

三、支持住宅小区设置开敞式风雨连廊

为方便居民室外休息活动,打造适应成都气候的遮风避雨归家路线,鼓励在不影响居民日常生活的前提下,通过设置开敞式风雨连廊,将小区出入口、楼栋出入口、单元出入口、小区内全民健身场所等公共空间相互连接。

开敞式风雨连廊不纳入容积率、建筑密度计算。

项目基础信息

项目名称:爱家春和凤鸣

项目占地:约36亩

总栋数:8栋住宅

在售产品:98㎡/107㎡/109㎡/116㎡(纯三房设计)

总层高:17F(小高层)/25F

容积率:2.5 | 绿化率:30%

物业公司:成都市泰达物业管理有限公司

物业费:2.1元/㎡/月

车位比:1:1.44

梯户比:2T2/2T3

装修情况:清水交付

交房时间:预计2026年6月

核心价值分析

1. 交通便捷·双地铁覆盖

地铁:项目步行可达凤溪河地铁站(4号线、19号线双线交汇),高效串联全城。

路网:紧邻凤溪大道、光华8线、光华大道、成温邛高速,快速通达主城各区。

2. 商业繁华·生活便利

核心商圈:周边汇聚新光天地、合生汇、伊藤洋华堂、永辉超市等,满足高端购物需求。

日常配套:下楼即达大润发,生活采买轻松便捷。

3. 生态宜居·公园环绕

自然景观:毗邻杨柳河生态走廊,周边光华公园、凤栖湖中央公园、温江公园环伺,推窗见绿,漫步即达。

4. 优质教育·书香氛围

中小学:川师温江附属学校、东一杨柳河小学、嘉祥外国语学校等优质学府,助力成长。

高校资源:临近西南财经大学、成都师范学院,人文氛围浓厚。

5. 医疗护航·健康无忧

医疗配套:温江区中医院、成都市第五人民医院等优质医疗资源,保障家人健康。

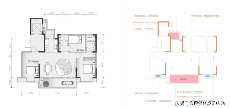
户型解析(B1 116㎡三室两厅双卫)

亮点:

电梯独立入户,私密性佳;

纯板式结构,南北通透,采光通风优越;

高得房率,空间利用率高;

功能布局:三房设计,主卧套间+双卫,满足家庭多样化需求。

爱家春和凤鸣【营销中心】:028-87777213「销售热线」

【置业顾问】:18613205563「微信同步」

【置业顾问】:19983517822「微信同步」

温馨提示:专业一对一热情服务,为了节约您的等待时间,看房请提前致电预约!!!

免责声明:

以上内容仅作为邀约邀请,涉及的图片为部分区域实拍图和美学畅想图,具体内容请以现场公示和合同约定为准;本文部分资料、部分图片来源于网络,如有侵权请联系我们删除。

声明:本文由入驻焦点开放平台的作者撰写,除焦点官方账号外,观点仅代表作者本人,不代表焦点立场。