2025【华润阅天府】售楼处电话-预约热线-楼盘详情
扫描到手机,新闻随时看
扫一扫,用手机看文章
更加方便分享给朋友
成都 华润阅天府【营销中心】:028-87777213「销售热线」
【置业顾问】:18613205563「微信同步」
【置业顾问】:19983517822「微信同步」
核心价值定位
城市极核地位
成都未来中心:天府总部商务区+兴隆湖科学城双核驱动,成渝经济圈创新极核,国家级新区经济总量(2022年4450亿元)领跑。
生态稀缺性:独占天府公园、鹿溪河生态区双中央绿肺,270°地标景观环绕。
国际配套能级:25家世界500强入驻,总投资超2526亿元,华西系医疗、国际商圈、TOD枢纽全覆盖。
产品稀缺性
纯板式2T2户:南北通透,户户得房率100%,143-252㎡主力户型,全龄段改善需求覆盖。
大师级设计:六大国际团队联袂操刀(如gad、JTL景观、近境制作等),以“全景舱”理念打造穿越周期的奢宅作品。
交通网络
地铁:1/6/18号线已运营,19号线二期(在建)、S5眉山线(规划中),红莲&秦皇寺TOD双枢纽。
城市动脉:紧邻天府大道主轴,直线距离约500米。
航空枢纽:城市候机楼(约3公里),快速接驳双流/天府国际机场。
全维配套
商业
招商花园城MALL、人字绿廊商业带、时代公园商业中心(均1公里内)。
教育
公立:元音小学/中学、天府第一小学、成都实验小学(天府校区)。
国际:乐盟国际学校、麓湖小学(约2公里)。
医疗
华西天府医院(约1.5公里)、万达国际医院(约2公里)、天新妇女儿童医院。

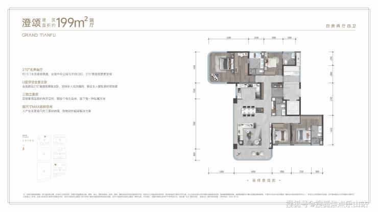
180-200㎡(四房两厅三卫)
优势:独立家政间,双主卧配置,景观阳台衔接客厅与次卧。
252㎡(五房两厅四卫)
亮点:270°转角厅,中西双厨,奢阔主卧衣帽间,顶层稀缺户型。
声明:本文由入驻焦点开放平台的作者撰写,除焦点官方账号外,观点仅代表作者本人,不代表焦点立场。
