成都盛世锦都什么档次?售楼电话-最新项目特惠一键咨询

搜狐焦点乐山站 2025-10-13 10:27:00
用手机看
扫描到手机,新闻随时看

扫一扫,用手机看文章
更加方便分享给朋友

【营销中心】:028-87777213「销售热线」 【置业顾问】:18613205563「微信同步」 【置业顾问】:19983517822「微信同步」 温馨提示:专业一对一热情服务,为了节约您的等待时间,看房请提前致电预约!!!

【营销中心】:028-87777213「销售热线」

【置业顾问】:18613205563「微信同步」

【置业顾问】:19983517822「微信同步」

温馨提示:专业一对一热情服务,为了节约您的等待时间,看房请提前致电预约!!!

免责声明:

以上内容仅作为邀约邀请,涉及的图片为部分区域实拍图和美学畅想图,具体内容请以现场公示和合同约定为准;本文部分资料、部分图片来源于网络,如有侵权请联系我们删除。

天府芯臻装美宅盛世锦都 持续热销

【核心价值】

盛世锦都位于天府新区法务区核心板块,占地76.3亩,容积率仅2.5,打造1103户低密精装住区。项目主推95-126㎡三至四房,精装带三大件(中央空调+新风+地暖),总价160万起,2025年3月交付,坐拥双TOD+七里溪绿廊,是天府前湾稀缺的高性价比品质盘。

【配套实测距离】

生态资源

七里溪生态绿廊丨项目东侧无缝衔接

天府公园(3750亩)丨车行3公里

商业教育

天府和悦广场(山姆会员店)丨车行2公里

天府三中/实验小学丨1.5公里范围内

医疗文体

华西天府医院(三甲)丨4公里

万安体育公园丨步行1公里

【三大核心优势】

双TOD红利:成都唯一双TOD(青岛路+昌公堰)板块,轨交增值潜力明确。

法务区赋能:毗邻省高院、检察院,未来4.5万律政精英聚集,圈层优质。

装标超值:对比周边2.5万/㎡竞品,装标配置更高(含地暖+智能家居)。

【通勤数据】轨交路网实测

地铁覆盖

6号线沈阳路站(已运营)丨步行约800米

昌公堰TOD(2025年建成)丨直线1.2公里

规划26号线丨未来1公里内设站

主干路网

夔州大道/蓉遵高速丨车行500米快速接入

麓山大道丨2公里直达高新区

双机场距离

双流机场约28公里(经蓉遵高速+机场高速)

天府机场约38公里(经天府国际机场高速)

【产品力解析】

1. 基础指标

户型分布

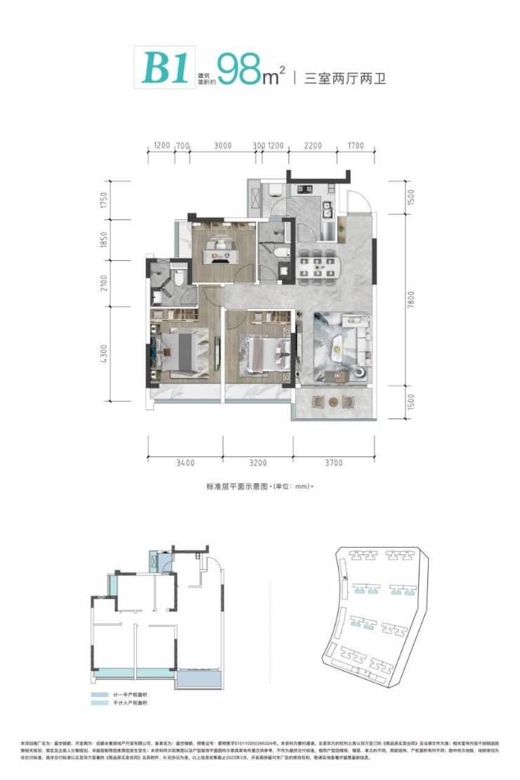
95-97㎡三房:总价160万起,南北通透,首置优选。

122-126㎡四房:7.5米横厅+双阳台,改善标杆。

精装标准:2998元/㎡(含博洛尼橱柜、TOTO智能马桶等)。

物业:永安物业,费3.2元/㎡,对标中高端服务。

2. 设计亮点

低密生态:42%绿化率+53-77米楼间距,三中庭园林设计。

商业配套:自建6400㎡L型商业街,满足日常需求。

A3—建面约122㎡四室两厅两卫 时代梦想家

户型方正 南北通透

全明大气横厅格局 满足多元生活场景

约7.5M超大宽景阳台 揽清风阳光入怀

【营销中心】:028-87777213「销售热线」

【置业顾问】:18613205563「微信同步」

【置业顾问】:19983517822「微信同步」

温馨提示:专业一对一热情服务,为了节约您的等待时间,看房请提前致电预约!!!

免责声明:

以上内容仅作为邀约邀请,涉及的图片为部分区域实拍图和美学畅想图,具体内容请以现场公示和合同约定为准;本文部分资料、部分图片来源于网络,如有侵权请联系我们删除。

声明:本文由入驻焦点开放平台的作者撰写,除焦点官方账号外,观点仅代表作者本人,不代表焦点立场。