成都华侨城七十二院|华侨城七十二院最新项目情况|楼盘户型
扫描到手机,新闻随时看
扫一扫,用手机看文章
更加方便分享给朋友
【营销中心】:028-87777213「销售热线」
【置业顾问】:18613205563「微信同步」
【置业顾问】:19983517822「微信同步」
温馨提示:专业一对一热情服务,为了节约您的等待时间,看房请提前致电预约!!!
免责声明:
以上内容仅作为邀约邀请,涉及的图片为部分区域实拍图和美学畅想图,具体内容请以现场公示和合同约定为准;本文部分资料、部分图片来源于网络,如有侵权请联系我们删除。
在成都龙泉驿区核心文旅带,一座融合中国传统建筑精髓与现房便利的墅居标杆——华侨城·七十二院正绽放光彩。项目不仅坐拥得天独厚的自然与人文资源,更以现房实景、即买即住的优势,成为追求品质与文化底蕴人士的首选。

项目区位图:

【项目核心亮点】
五派国风院落 传世府邸: 匠心复刻徽派(217-327㎡)、晋派(406-450㎡)、川派(372-480㎡)、海派(469-484㎡)、闽派(商业)五大中国经典建筑流派,户户带花园(80-300㎡),独立车库,一院一世界。
醇熟现房 即买即享: 实景呈现,省去等待期与期房风险,所见即所得,即刻开启理想院落生活。
景区里的家: 项目位于龙泉驿区洛带三峨街999号,东邻龙泉山城市森林公园,北接国家4A级景区洛带古镇(直线距离约1.5公里),西靠洛水湿地公园(直线距离约800米),南望千亩蔚然花海(直线距离约1公里),生态与人文无缝衔接。
超高性价比: 单价低至10000元/㎡起,特价房源总价178万起!主力在售总价区间覆盖300万至1000万,满足不同需求。
超低容积率: 仅0.65,奢享低密纯粹墅居环境。
完善配套:物业由华侨城物业(集团)有限公司成都分公司提供,物业费5元/㎡·月。





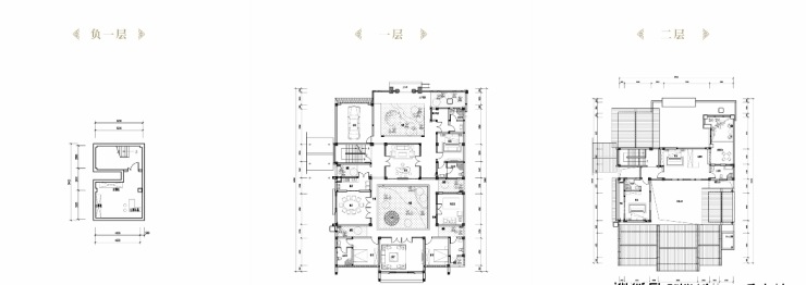
户型鉴赏:
川派:明月府 9-2#(建筑面积373.17㎡,实际面积约513㎡)


川派:南风院 6-3#(建筑面积369.13㎡,实际面积约513㎡)


川派:千虹院 12-5#(建筑面积448.24㎡,实际面积约633㎡)


川派:虹霓院 13-2#(建筑面积370.09㎡,实际面积约514㎡)


【营销中心】:028-87777213「销售热线」
【置业顾问】:18613205563「微信同步」
【置业顾问】:19983517822「微信同步」
温馨提示:专业一对一热情服务,为了节约您的等待时间,看房请提前致电预约!!!
免责声明:
以上内容仅作为邀约邀请,涉及的图片为部分区域实拍图和美学畅想图,具体内容请以现场公示和合同约定为准;本文部分资料、部分图片来源于网络,如有侵权请联系我们删除。
声明:本文由入驻焦点开放平台的作者撰写,除焦点官方账号外,观点仅代表作者本人,不代表焦点立场。
