成都房产【爱家春和凤鸣】9月最新房价-电话预约-价值分析

搜狐焦点乐山站 2025-10-05 06:33:00
用手机看
扫描到手机,新闻随时看

扫一扫,用手机看文章
更加方便分享给朋友

爱家春和凤鸣【营销中心】:028-87777213「销售热线」 【置业顾问】:18613205563「微信同步」 【置业顾问】:19983517822「微信同步」

爱家春和凤鸣【营销中心】:028-87777213「销售热线」

【置业顾问】:18613205563「微信同步」

【置业顾问】:19983517822「微信同步」

你敢信?成都5年人口暴涨了近500万!

2025年,一组成都统计局发布的数据引发了热烈讨论:

2024年成都常住人口约为2147.4万人,比2019年的1658.1,飙升了490万人,增幅高达30%;城镇化率80.8%,首次突破80%大关。

更震撼的是,当北京、上海、重庆因主动控规模或区域调整出现人口负增长(北京减1.8万、上海减13.1万、重庆减21.9万)时,成都却逆势抢人。

这不仅是2000万级城市中的独一份,更标志着成都正从西南中心向全国人口第三城发起冲刺。

项目基础信息

项目名称:爱家春和凤鸣

项目占地:约36亩

总栋数:8栋住宅

在售产品:98㎡/107㎡/109㎡/116㎡(纯三房设计)

总层高:17F(小高层)/25F

容积率:2.5 | 绿化率:30%

物业公司:成都市泰达物业管理有限公司

物业费:2.1元/㎡/月

车位比:1:1.44

梯户比:2T2/2T3

装修情况:清水交付

交房时间:预计2026年6月

核心价值分析

1. 交通便捷·双地铁覆盖

地铁:项目步行可达凤溪河地铁站(4号线、19号线双线交汇),高效串联全城。

路网:紧邻凤溪大道、光华8线、光华大道、成温邛高速,快速通达主城各区。

2. 商业繁华·生活便利

核心商圈:周边汇聚新光天地、合生汇、伊藤洋华堂、永辉超市等,满足高端购物需求。

日常配套:下楼即达大润发,生活采买轻松便捷。

3. 生态宜居·公园环绕

自然景观:毗邻杨柳河生态走廊,周边光华公园、凤栖湖中央公园、温江公园环伺,推窗见绿,漫步即达。

4. 优质教育·书香氛围

中小学:川师温江附属学校、东一杨柳河小学、嘉祥外国语学校等优质学府,助力成长。

高校资源:临近西南财经大学、成都师范学院,人文氛围浓厚。

5. 医疗护航·健康无忧

医疗配套:温江区中医院、成都市第五人民医院等优质医疗资源,保障家人健康。

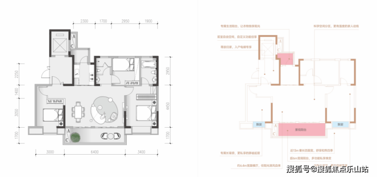
户型解析(B1 116㎡三室两厅双卫)

亮点:

电梯独立入户,私密性佳;

纯板式结构,南北通透,采光通风优越;

高得房率,空间利用率高;

功能布局:三房设计,主卧套间+双卫,满足家庭多样化需求。

爱家春和凤鸣【营销中心】:028-87777213「销售热线」

【置业顾问】:18613205563「微信同步」

【置业顾问】:19983517822「微信同步」

温馨提示:专业一对一热情服务,为了节约您的等待时间,看房请提前致电预约!!!

免责声明:

以上内容仅作为邀约邀请,涉及的图片为部分区域实拍图和美学畅想图,具体内容请以现场公示和合同约定为准;本文部分资料、部分图片来源于网络,如有侵权请联系我们删除。成都房产【】9月最新房价-电话预约-价值分析

声明:本文由入驻焦点开放平台的作者撰写,除焦点官方账号外,观点仅代表作者本人,不代表焦点立场。