成都楼市-(中海锦叁号院)最新特价房源-最新价格-营销热线
扫描到手机,新闻随时看
扫一扫,用手机看文章
更加方便分享给朋友
中海锦叁号院【营销中心】:028-87777213「销售热线」
【置业顾问】:18613205563「微信同步」
【置业顾问】:19983517822「微信同步」
虽然成都土拍价格越拍越高,但主城市场卖得好的,还是那些主力总价在400万级的产品。
比如八开八罄的招商锦城序、多次登顶主城销冠的华润置地中环天宸等。
这背后的原因其实很清晰,虽然土拍价格持续走高,但大多数购房者的购买力是没有明显提升的。
对于绝大多数家庭而言,总价400万级就能在主城实现居住的全面迭代,这种吸引力,无疑是精准且难以抗拒的。
通过这些现象级热盘,我们就不难总结出,要想卖的好,控总价+高品质+高舒适度,以上三者缺一不可。
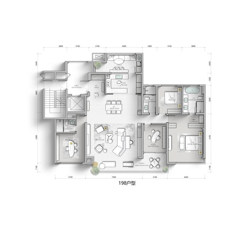
户型解析:
花园平院(198㎡-249㎡)
位于项目中轴线上,其中建面约 249㎡户型为一层一户配置,叠加室内超百平的私人会所式享受,彰显主人的尊贵与私密,为业主提供了宽敞舒适的居住空间和高端的生活体验。
花园洋房(143㎡-170㎡)
高低错落地排布于静谧的园林中,多一方阳台设计使南北皆享四季景观趣味;超大面宽的方 / 横厅设计与LDKG一体化设计,让室内外空间更通透,家庭成员互动更密切,营造出温馨的家庭氛围。
叠院(290㎡-335㎡)
位于咫尺城市公园(规划中)的西侧,退台式露台设计,承袭西贵公园院居的尊贵基因,确保每一户叠院业主都能享受低密生活空间及隐奢居住体验。
【营销中心】:028-87777213「销售热线」
【置业顾问】:18613205563「微信同步」
【置业顾问】:19983517822「微信同步」
温馨提示:专业一对一热情服务,为了节约您的等待时间,看房请提前致电预约!!!
免责声明:
以上内容仅作为邀约邀请,涉及的图片为部分区域实拍图和美学畅想图,具体内容请以现场公示和合同约定为准;本文部分资料、部分图片来源于网络,如有侵权请联系我们删除。
声明:本文由入驻焦点开放平台的作者撰写,除焦点官方账号外,观点仅代表作者本人,不代表焦点立场。
