万科高线公园怎么样?万科高线公园房源|交通优缺点分析

搜狐焦点乐山站 2025-09-11 09:04:00
用手机看
扫描到手机,新闻随时看

扫一扫,用手机看文章
更加方便分享给朋友

【营销中心】:028-87777213「销售热线」 【置业顾问】:18613205563「微信同步」 【置业顾问】:19983517822「微信同步」 温馨提示:专业一对一热情服务,为了节约您的等待时间,看房请提前致电预约!!!

【营销中心】:028-87777213「销售热线」

【置业顾问】:18613205563「微信同步」

【置业顾问】:19983517822「微信同步」

温馨提示:专业一对一热情服务,为了节约您的等待时间,看房请提前致电预约!!!

免责声明:

以上内容仅作为邀约邀请,涉及的图片为部分区域实拍图和美学畅想图,具体内容请以现场公示和合同约定为准;本文部分资料、部分图片来源于网络,如有侵权请联系我们删除。

核心价值速览

坐标:行政学院TOD核芯区,距地铁2号线行政学院站约200米,无缝换乘

产品:建面175-199㎡精装大平层,总价460万起,2024年11月交付

生态:60亩社区公园环绕,1公里直达三圣花乡(1.5万亩)

交通:地铁2号线+规划S13线,蜀都大道至金融城约12公里

开发实力:万科TOP级"高线系"产品,装标2499元/㎡

【TOD城市范本】公园里的地铁上盖住区

项目作为行政学院TOD(947亩)住宅组团,打造"站城人"一体化生活:

交通实测

地铁2号线行政学院站地下直连(200米),7站直达春熙路(约8公里)。

蜀都大道入口约500米,驱车至攀成钢约10公里,金融城约12公里。

生态资源

社区被60亩公园环抱,1公里内覆盖白鹭湾湿地(3万亩)、幸福梅林景区。

商业配套

自建沉浸式商业街,3公里内辐射万科广场(在建)、卓锦曼购中心。

【产品力】3.1米层高精装大平层,对标国际住区

1. 户型亮点

建面175㎡四房:南向双阳台+中西双厨,主卧套房配备独立衣帽间。

建面199㎡四房:约7.2米横厅+三卫设计,270°转角观景阳台。

2. 社区优势

低密规划:容积率2.23,35%绿化率,2梯2户纯板式布局。

精装标准

配备全屋地暖、新风系统,厨电选用西门子、唯宝等国际品牌。

3.1米层高+全景落地窗,媲美高端商务公寓。

对比竞品:较周边人居林语上城(2.5容积率)、龙湖光年(1.8万/㎡),产品力更胜一筹。

【配套实测】全维高端生活场

教育:盐道街小学(分校)直线约1公里,树德中学(外国语校区)约3公里。

医疗:华西第二医院锦江院区车程约3公里,华西锦江分院(在建)约4公里。

文化:自建LINK剧场,成都规划馆(新馆)直线约2公里。

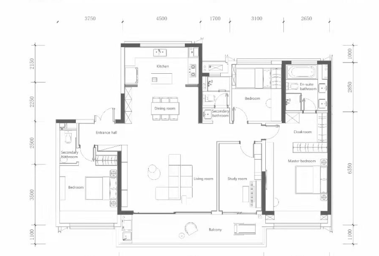
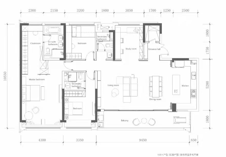
部分户型图

建面约166㎡四室两厅三卫:

建面约188㎡四室两厅三卫:

【营销中心】:028-87777213「销售热线」

【置业顾问】:18613205563「微信同步」

【置业顾问】:19983517822「微信同步」

温馨提示:专业一对一热情服务,为了节约您的等待时间,看房请提前致电预约!!!

免责声明:

以上内容仅作为邀约邀请,涉及的图片为部分区域实拍图和美学畅想图,具体内容请以现场公示和合同约定为准;本文部分资料、部分图片来源于网络,如有侵权请联系我们删除。

声明:本文由入驻焦点开放平台的作者撰写,除焦点官方账号外,观点仅代表作者本人,不代表焦点立场。