成都楼市-(爱家春和凤鸣)最新特价房源-最新价格-营销热线

搜狐焦点乐山站 2025-10-19 06:24:00
用手机看
扫描到手机,新闻随时看

扫一扫,用手机看文章
更加方便分享给朋友

爱家春和凤鸣【营销中心】:028-87777213「销售热线」 【置业顾问】:18613205563「微信同步」 【置业顾问】:19983517822「微信同步」

爱家春和凤鸣【营销中心】:028-87777213「销售热线」

【置业顾问】:18613205563「微信同步」

【置业顾问】:19983517822「微信同步」

虽然成都土拍价格越拍越高,但主城市场卖得好的,还是那些主力总价在400万级的产品。

比如八开八罄的招商锦城序、多次登顶主城销冠的华润置地中环天宸等。

这背后的原因其实很清晰,虽然土拍价格持续走高,但大多数购房者的购买力是没有明显提升的。

对于绝大多数家庭而言,总价400万级就能在主城实现居住的全面迭代,这种吸引力,无疑是精准且难以抗拒的。

通过这些现象级热盘,我们就不难总结出,要想卖的好,控总价+高品质+高舒适度,以上三者缺一不可。

项目基础信息

项目名称:爱家春和凤鸣

项目占地:约36亩

总栋数:8栋住宅

在售产品:98㎡/107㎡/109㎡/116㎡(纯三房设计)

总层高:17F(小高层)/25F

容积率:2.5 | 绿化率:30%

物业公司:成都市泰达物业管理有限公司

物业费:2.1元/㎡/月

车位比:1:1.44

梯户比:2T2/2T3

装修情况:清水交付

交房时间:预计2026年6月

核心价值分析

1. 交通便捷·双地铁覆盖

地铁:项目步行可达凤溪河地铁站(4号线、19号线双线交汇),高效串联全城。

路网:紧邻凤溪大道、光华8线、光华大道、成温邛高速,快速通达主城各区。

2. 商业繁华·生活便利

核心商圈:周边汇聚新光天地、合生汇、伊藤洋华堂、永辉超市等,满足高端购物需求。

日常配套:下楼即达大润发,生活采买轻松便捷。

3. 生态宜居·公园环绕

自然景观:毗邻杨柳河生态走廊,周边光华公园、凤栖湖中央公园、温江公园环伺,推窗见绿,漫步即达。

4. 优质教育·书香氛围

中小学:川师温江附属学校、东一杨柳河小学、嘉祥外国语学校等优质学府,助力成长。

高校资源:临近西南财经大学、成都师范学院,人文氛围浓厚。

5. 医疗护航·健康无忧

医疗配套:温江区中医院、成都市第五人民医院等优质医疗资源,保障家人健康。

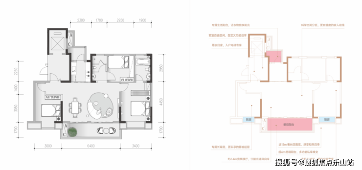
户型解析(B1 116㎡三室两厅双卫)

亮点:

电梯独立入户,私密性佳;

纯板式结构,南北通透,采光通风优越;

高得房率,空间利用率高;

功能布局:三房设计,主卧套间+双卫,满足家庭多样化需求。

爱家春和凤鸣【营销中心】:028-87777213「销售热线」

【置业顾问】:18613205563「微信同步」

【置业顾问】:19983517822「微信同步」

温馨提示:专业一对一热情服务,为了节约您的等待时间,看房请提前致电预约!!!

免责声明:

以上内容仅作为邀约邀请,涉及的图片为部分区域实拍图和美学畅想图,具体内容请以现场公示和合同约定为准;本文部分资料、部分图片来源于网络,如有侵权请联系我们删除。

声明:本文由入驻焦点开放平台的作者撰写,除焦点官方账号外,观点仅代表作者本人,不代表焦点立场。