成都北湖揽樾_北湖揽樾首页网站_2025楼盘详情
扫描到手机,新闻随时看
扫一扫,用手机看文章
更加方便分享给朋友
成都北湖揽樾售楼处电话:028-87777213【营销中心】
☎【置业顾问】:18613205563「微信同步」☎
☎【置业顾问】:19983517822「微信同步」☎
项目核心价值
低密宜居:容积率仅1.52,以洋房、叠拼、大平层为主,居住舒适度高。
产品多样:涵盖洋房(8层)、叠拼(3层)、大平层,满足不同改善需求。
品质装修:洋房精装交付(2000元/㎡标准),叠拼和大平层清水交付,空间可塑性强。
品牌物业:中铁建物业提供高品质服务,洋房物业费3元/㎡,叠拼4.5元/㎡。
交通配套
地铁:距离地铁8号线(规划中)约1.2公里。
主干道:紧邻龙青路、北湖生态公园环线,快速衔接成华大道、三环路。
公交:周边500米内设有多条公交线路(如666路、87路)。
三、生活配套
商业:3公里内涵盖龙湖滨江天街、万象城等大型商业综合体。
生态:项目紧邻北湖生态公园(直线距离约800米),享湖景资源。
医疗:2公里范围内有成都市第二人民医院(龙潭院区)。
四、教育资源
幼儿园:项目配建幼儿园,周边1.5公里内有金苹果幼儿园等优质园所。
中小学:划片成华区教育资源,如成都万汇学校(距约2公里)、石室中学北湖校区(距约3公里)。
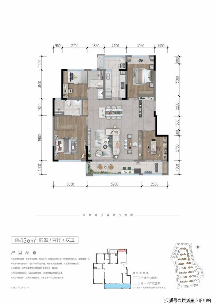
户型亮点分析
洋房(1梯2户)
主力面积约110-140㎡,全明设计,2.95米层高,空间通透。
精装交付,配置地暖、中央空调等,性价比高。
叠拼(1梯2户)
建面约200-250㎡,3.2米层高,负一层5.1米挑高(78㎡),可改造为多功能空间。
清水交付,满足个性化装修需求。
大平层(1梯1户)
建面约180-220㎡,私梯入户,视野开阔,定位高端改善。
成都北湖揽樾售楼处电话:028-87777213【营销中心】
☎【置业顾问】:18613205563「微信同步」☎
☎【置业顾问】:19983517822「微信同步」☎
___欢迎来电咨询丨专业一对一热情服务丨看房需提前预约
——如有侵权请联系我们删帖——
温馨提示:为了节约您的等待时间,看房请提前致电售楼处预约!!!
声明:本文由入驻焦点开放平台的作者撰写,除焦点官方账号外,观点仅代表作者本人,不代表焦点立场。
