2025- 华润昆仑御-成都(华润昆仑御)指定网站|营销热线
扫描到手机,新闻随时看
扫一扫,用手机看文章
更加方便分享给朋友
成都华润昆仑御售楼处电话:028-87777213【营销中心】
☎【置业顾问】:18613205563「微信同步」☎
☎【置业顾问】:19983517822「微信同步」☎
——东进主轴低密洋房,极致生活美学践行者
核心价值亮点
低密宜居
容积率约2.0,10层1梯2户纯洋房配置,居住舒适度远超高层。
跃层设计:首层+夹层、顶层4.8米挑高,墅级空间体验;6.6-7米横厅+南北通透,改善型品质。
现房交付:即买即住,规避期房风险。
地段潜力
东进主轴核心:踞守成洛大道,紧邻龙泉驿区“一心三极”规划中的西河副中心,享城市发展红利。
产业加持:中法生态园(投资260亿)、国际智慧新城双引擎驱动,区域价值持续攀升。
华润品牌背书
华润物业(3.35元/㎡)提供高端服务,配建30班小学,营销中心未来移交为小学图书馆,兑现教育承诺。
交通体系
三轴三环三地铁,立体路网覆盖:
主干道:东进主轴成洛大道、蜀都大道、西陵大道(建设中);
环线:三环、四环(绕城高速)、东安大道(车城大道);
地铁:4号线(已运营西河站,规划东延线站点)、17号线(规划接驳S4市域铁路)、22号线(规划中),未来轨交便捷。
三、全维配套
教育
全龄9校环伺:永丰学校(项目旁)、斯宾塞格林幼儿园、龙泉二十四小、成都教科院附属龙泉学校(9年一贯制)等,华润配建30班小学,满足0-18岁需求。
商业
银诚商业中心(建设中)、万象城、339等商圈辐射,周边多块规划商业用地,生活便利。
医疗
成都市中心医院(规划中),三级医疗资源护航。
生态
青龙湖湿地公园(3万亩,主城最大湖泊)、锦绣天府中央绿芯(4.8万亩)、龙泉山城市森林公园(1275平方公里),生态资源密集。
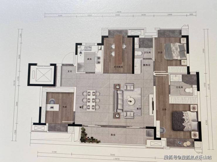
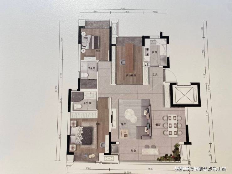
106㎡三室两厅双卫
123㎡四室两厅双卫
188㎡(106㎡的底跃)
229㎡(123㎡的底跃)
成都华润昆仑御售楼处电话:028-87777213【营销中心】
☎【置业顾问】:18613205563「微信同步」☎
☎【置业顾问】:19983517822「微信同步」☎
___欢迎来电咨询丨专业一对一热情服务丨看房需提前预约
——如有侵权请联系我们删帖——
温馨提示:为了节约您的等待时间,看房请提前致电售楼处预约!!!
声明:本文由入驻焦点开放平台的作者撰写,除焦点官方账号外,观点仅代表作者本人,不代表焦点立场。
