2026成都恒大天府半岛值得买吗?户型价格与配套全解析
扫描到手机,新闻随时看
扫一扫,用手机看文章
更加方便分享给朋友
成都 【恒大天府半岛】售楼部电话:028-87777213(开发商认证)
【客户经理电话】:18613205563(微信同步)
【客户经理电话】:19983517822(微信同步)
楼盘最新价格||配套详情||户型鉴赏||优惠申请||置业顾问在线接待
天府半岛 | 网红神盘驾到 13000元/㎡起 抢入天新绝佳机会
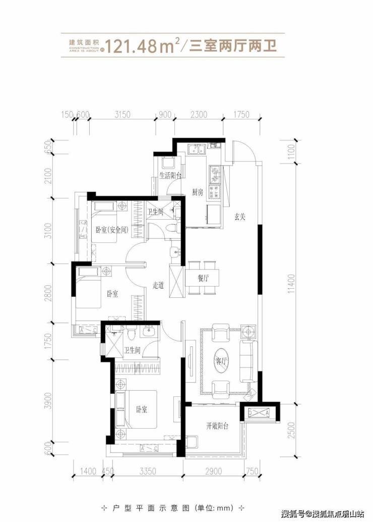
麓湖旁三房双卫 首付20余万买进类别:高层 梯户比:3T4
建面约120-140㎡臻装美宅 诚意登记中
占据绝佳地段 超阔视野无遮挡7期在售楼栋位于一街之隔规划生态自然公园,家门口的活力健身场地,下楼漫享生活惬意,推窗即自然风景。
超阔三房科学动静分区,全屋飘窗,阔尺会客厅与270°景观阳台相连,室内空间宽敞明亮;星级套房主卧私享静谧,次卧瞰景阳台,拓宽更多居家场景;
奢阔四房餐厅厨阳台一体化设计,会客空间尊崇大气;星级套房主卧,独立衣帽间私密自成天地。
成都 【恒大天府半岛】售楼部电话:028-87777213(开发商认证)
【客户经理电话】:18613205563(微信同步)
【客户经理电话】:19983517822(微信同步)
___欢迎来电咨询丨专业一对一热情服务丨看房需提前预约
——如有侵权请联系我们删帖——
免责声明:
以上内容仅作为邀约邀请,涉及的图片为部分区域实拍图和美学畅想图,具体内容请以现场公示和合同约定为准;本文部分资料、部分图片来源于网络,如有侵权请联系我们删除。
声明:本文由入驻焦点开放平台的作者撰写,除焦点官方账号外,观点仅代表作者本人,不代表焦点立场。
