成都广都鑫中心_广都鑫中心首页网站_2025楼盘详情
扫描到手机,新闻随时看
扫一扫,用手机看文章
更加方便分享给朋友
广都鑫中心【营销中心】:028-87777213「销售热线」
【置业顾问】:18613205563「微信同步」
【置业顾问】:19983517822「微信同步」
温馨提示:专业一对一热情服务,为了节约您的等待时间,看房请提前致电预约!!!
成都楼市营销概念从来都没有停过。
早期“南富西贵”,西边南边就是买房首选,近些年才了解成都楼市的人,可能想象不到,现在岁月静好的温江以前也火爆过。
前几年东进、南拓、楼市营销方向就是买房就往南边买、最次也是东边买。“宁要城南一张床,不要城北一套房”,南边天府新区非核心板块,现在成交2万都难的二手房,当时能卖到3万以上,甚至视高都能卖到1.5万以上。
而现在楼市从投资时代转变为自住时代,概念其实已经弱化了,但依然存在,就是所谓的“新中心”、"多中心"等等。
其实对于买房的人来说,真的可以不需要听各种概念,做一个大概的区域排序分档,结合自己的需求和预算,尽可能往最有排序买就可以了。
这些年,成都楼市各城区,一直都分三档。
买房自住时代,也是存量更新时代。核心城区>近郊城区>远郊城区的三档分层,更强调城市配套能级与市场价值的分化。
核心城区凭借成熟的配套资源、通达的交通位置、综合的服务产业集聚效应,依托存量阶段,现在的城市界面更新发展方向,几乎是已经立于了楼市的不败之地。
近郊城区高度吃市场红利,现在没有红利可吃,还有人不认命,现在主要依托产业导入和逐步承接主城外溢需求,现在的近郊城区的楼市价值,核心在于产业与交通,有优质产业、便利交通的地方就还有起色,反之就凶多吉少。
远郊城区则因基础设施薄弱、人口吸附力不足,基本上在楼市就没有什么吸引外溢的竞争力了,主要就是区域内自住买。
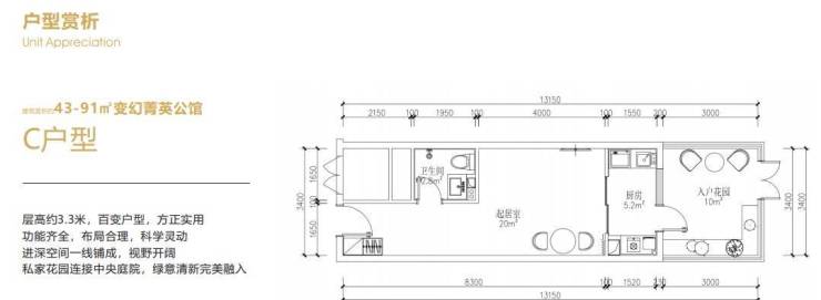
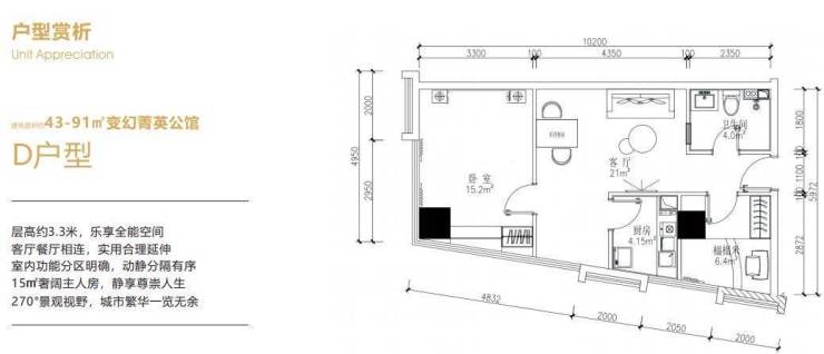
🏗️【项目参数】🍃占地面积:28.35亩🍃建筑面积:241470.5m🍃目前主售:双发天禧中心2号楼1、2单元🍃主力户型:57㎡🍃面积段:43㎡-91㎡(主力面积52-60)🍃层高:3.25-3.3米🍃总高:25层🍃首开楼层:7、22🍃三通:水电气三通🍃公摊:约30%🍃梯户比:6T33户 6T37户🍃物管费:4.9元🍃交付时间:合同2025年12月31日前🍃交付标准:清水💰均价:6600-7500💰付款方式:一次性
✅开发商:成都双发君地置业有限公司✅物业公司:四川博蕙京通物业管理有限公司
💯【核┃心┃卖┃点】1⃣️天府大道中轴线上 唯一在售总价低 小面积水电气三通产品 周边楼盘无竞品 2⃣️双地铁(1号线/18号线)便捷出行3⃣️可交于 锦江国际(世界第二,亚洲第一酒店集团)旗下"欧暇地中海"酒店运营,清水交房后8个月为装修期(没有收益),装修好后6个月期间作为酒店培育期,没有保底收益,享受酒店运营分红收益(收益五五分成),从第7月开始,正式享受保底(保底30元/平)加酒店运营五五分红, 平均收益:3800-4000/月!4⃣️地处于金融城,新川科技园,天府新区中央商务区三大板块交汇的黄金金三角区域,桥头堡价值洼地,大大吸附周边区域人流。5⃣️每层自带600-700㎡高线公园。 每层只有十户享受额外赠送7-9㎡阳台空间。
⭕【区域位置】位于成都市天府新区天府大道1888号,是智能化绿色长廊的菁英空间,含有高端酒店、文化会所及中高端商业配套的综合体物业。
🚗【交通配套】:双地铁上盖:1号线华阳站(300米)18号线海昌路站(400米)503 504 T205等二十条公交线路五纵四横立体网络五纵:剑南大道、益州大道、天府大道、梓州大道(科华路南延线)、成自泸高速;四横:三环路、绕城高速、华阳大道、麓山大道。
🎏【商业配套】:项目1-4楼自带30000方的上海协星星光商业体,-1楼大型超市盒马生鲜,-2至-4楼自带1661个停车位 。项目斜对面是家乐福购物中心项目南面300米是正在修建的三利广场,是集商务办公、综合购物、高端酒店、商业体验为一体的综合性购物广场,项目对面还有金地三期约70万方的大型商业综合体,周边还有沃尔玛山姆会员店、红星美凯龙、富森美等综合性商业,实现人居蓝本的同时,项目在后期还会迎来配套的再一次升级。
🏥【医疗配套】:拥有天府新区人民医院、四川石油总医院、玛利亚天府妇产儿童医院、天府新区安琪儿国际妇女儿童医院、四川省中西医结合医院、四川宝石花医院等。
🌴【生态娱乐】:项目旁边是海昌极地海洋公园、南湖梦幻岛,南湖湿地公园等。
🎓【优质教育】:金苹果幼儿园 天府四小 天府五小 天府实验小学 天府实验中学 天府实验外国语学校等。
✅【多变户型】
【营销中心】:028-87777213「销售热线」
【置业顾问】:18613205563「微信同步」
【置业顾问】:19983517822「微信同步」
温馨提示:专业一对一热情服务,为了节约您的等待时间,看房请提前致电预约!!!
免责声明:
以上内容仅作为邀约邀请,涉及的图片为部分区域实拍图和美学畅想图,具体内容请以现场公示和合同约定为准;本文部分资料、部分图片来源于网络,如有侵权请联系我们删除。
声明:本文由入驻焦点开放平台的作者撰写,除焦点官方账号外,观点仅代表作者本人,不代表焦点立场。
