【卡地亚湖滨壹号】最新房价及在售户型深度分析-营销中心

搜狐焦点乐山站 2025-09-20 11:33:00
用手机看
扫描到手机,新闻随时看

扫一扫,用手机看文章
更加方便分享给朋友

成都 卡地亚湖滨壹号【营销中心】:028-87777213「销售热线」 【置业顾问】:18613205563「微信同步」 【置业顾问】:19983517822「微信同步」

成都 卡地亚湖滨壹号【营销中心】:028-87777213「销售热线」

【置业顾问】:18613205563「微信同步」

【置业顾问】:19983517822「微信同步」

—天府怡心湖核心,国际湖滨生活范本

成都市规划和自然资源局关于公开征求《〈成都市城市规划管理技术规定(2024)〉 的补充规定》意见的公告,涉及容积率、封窗新规。

一、支持立面公建化,建筑立面统一

为促进建筑立面协调统一,支持住宅立面公建化设计,阳台无论封闭与否,均按照其水平投影面积的 1/2 纳入容积率计算。

二、提升阳台等房屋空间品质

为打造亲近自然的居住空间,满足市民多样化居住需求,阳台、飘窗、以及各类形式的入户花园、空中花园、露台、退台、设备平台、空调板、构造板、结构板、抗震板、开敞式电梯前室、外廊、空腔、镂空、花池等房屋附属空间的水平投影面积不大于该项目住宅计容建筑面积的30%。

三、支持住宅小区设置开敞式风雨连廊

为方便居民室外休息活动,打造适应成都气候的遮风避雨归家路线,鼓励在不影响居民日常生活的前提下,通过设置开敞式风雨连廊,将小区出入口、楼栋出入口、单元出入口、小区内全民健身场所等公共空间相互连接。

开敞式风雨连廊不纳入容积率、建筑密度计算。

【核心价值分析】

品牌价值

蔚蓝卡地亚高端基因,打造成都塔尖人居标杆,兼具收藏价值与身份象征。

城市站位

占据天府怡心湖板块中心,北接金融城、南连天府总部商务区,西临自贸区+国际生物城,聚合城市发展势能。

稀缺资源

千亩湖滨公园+500亩湖域景观,270°—360°全景视野,成都罕有低密湖居资产。

国际设计

新加坡国宝级大师SooK Chan领衔设计,全球顶尖团队(SCDA、PLD等)操刀建筑、灯光及商业规划,公建化立面+蒙德里安美学中庭。

【交通优势】

地铁:5号线+19号线(怡心湖站)双地铁TOD,无缝接驳双流/天府国际机场。

主干道:剑南大道+五环路纵横,快速直达金融城(约8km)、天府CBD(约10km)。

航空:距双流国际机场约12km,天府国际机场约35km。

【配套资源】

商业

北岸/南岸商业+地铁枢纽商业集群,3大国际级商业体环绕。

文旅

2.7km湖岸线地标建筑群、湖滨文化艺术中心(曾仕乾设计)、双五星酒店(凯悦Alila+尚萃)。

生态

千亩怡心湖公园,步行即达湖滨慢行系统。

教育

周边规划国际学校(具体以教育局公示为准),3km内覆盖优质公立教育资源。

【产品力解析】

奢装配置

国际一线品牌:斯麦格厨电、杜拉维特卫浴、汉斯格雅五金,精装交付彰显品质。

公区服务

每栋配备星级大堂、恒温泳池、健身房、咖啡图书区,提供私人管家服务(保洁、定制宴请、物业托管等)。

梯户比

3梯1户至3梯4户,3.4米-3.9米层高,极致舒适度。

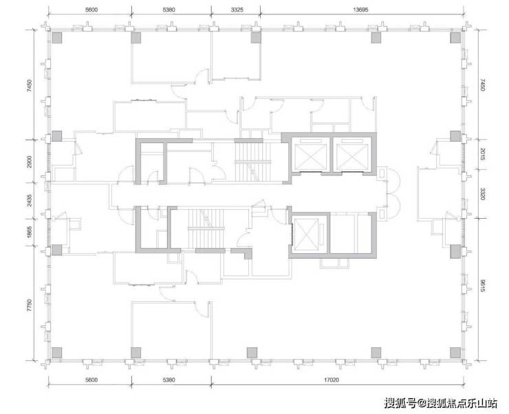
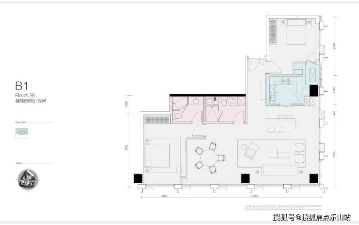
【户型鉴赏】

一户一层,整层630㎡

成都 卡地亚湖滨壹号【营销中心】:028-87777213「销售热线」

【置业顾问】:18613205563「微信同步」

【置业顾问】:19983517822「微信同步」

温馨提示:专业一对一热情服务,为了节约您的等待时间,看房请提前致电预约!!!

免责声明:

以上内容仅作为邀约邀请,涉及的图片为部分区域实拍图和美学畅想图,具体内容请以现场公示和合同约定为准;

声明:本文由入驻焦点开放平台的作者撰写,除焦点官方账号外,观点仅代表作者本人,不代表焦点立场。