成都城南美地中心|城南美地中心最新项目情况|楼盘户型

搜狐焦点乐山站 2025-09-21 09:05:00
用手机看
扫描到手机,新闻随时看

扫一扫,用手机看文章
更加方便分享给朋友

【营销中心】:028-87777213「销售热线」 【置业顾问】:18613205563「微信同步」 【置业顾问】:19983517822「微信同步」 温馨提示:专业一对一热情服务,为了节约您的等待时间,看房请提前致电预约!!!

【营销中心】:028-87777213「销售热线」

【置业顾问】:18613205563「微信同步」

【置业顾问】:19983517822「微信同步」

温馨提示:专业一对一热情服务,为了节约您的等待时间,看房请提前致电预约!!!

免责声明:

以上内容仅作为邀约邀请,涉及的图片为部分区域实拍图和美学畅想图,具体内容请以现场公示和合同约定为准;本文部分资料、部分图片来源于网络,如有侵权请联系我们删除。

想在成都城南安家,享受便捷都市生活?城南美地中心品质现房正火热销售中!项目地处潜力板块,坐拥成熟配套与立体交通网,小户型即可轻松入驻城南核心圈层。

核心地段,立体交通畅达全城:

双地铁环绕: 已运营的地铁8号线机场快速路口站距项目约800米,轻松接驳主城。在建中的地铁30号线谢家渡站亦在项目辐射范围内,未来出行更添便利。

高效路网: 紧邻机场高速、成雅高速两大动脉,天府大道、大件路、机场路三条城市主干道环绕,无缝连接神仙树、高新等核心生活圈。

公交便捷: 816路、804B路、846路等多条公交线路通达,更有91路公交直达市中心天府广场

醇熟配套,生活无忧:

商圈环抱: 项目自身规划约30万方创享生活城(含商业街、5000㎡超市等),800米即达乐天玛特大型购物商场、CGV影院1.3公里范围内有北京华联购物中心。花天锦地美食城、韩国城商业中心等均在便捷生活圈内。

高校氛围: 周边高校环伺,人文气息浓厚。

生活基础: 水电气三通,满足日常生活所需。

产品亮点,即买即住:

实景现房: 所见即所得,品质看得见,免去期房等待风险。

多元户型: 主力户型为建面约 51㎡(豪华套间)、59㎡(百变套二)、82㎡(舒适套二)、95-104㎡(阔尺套三),满足不同家庭结构需求。清水交付,个性装修改造空间大。

空间尺度: 主力户型设计注重空间感,部分户型拥有大面宽客厅,居住舒适度高。层高约3米。

性价比高: 均价约8500-9000元/㎡,首付门槛相对较低(最低5成),是入驻城南的优选。

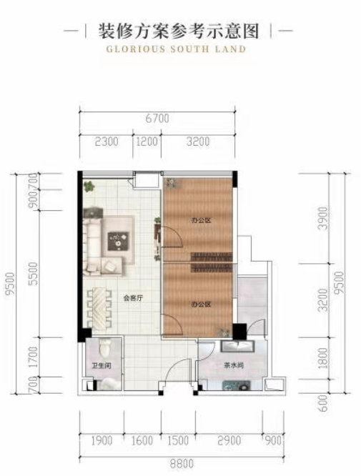
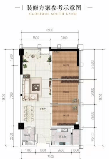
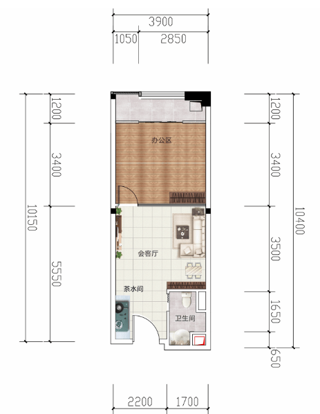
【户型鉴赏】

A户型:104㎡阔尺套三

B户型:82㎡舒适套二

C户型:59㎡百变套二

D户型:51㎡豪华套间

【营销中心】:028-87777213「销售热线」

【置业顾问】:18613205563「微信同步」

【置业顾问】:19983517822「微信同步」

温馨提示:专业一对一热情服务,为了节约您的等待时间,看房请提前致电预约!!!

免责声明:

以上内容仅作为邀约邀请,涉及的图片为部分区域实拍图和美学畅想图,具体内容请以现场公示和合同约定为准;本文部分资料、部分图片来源于网络,如有侵权请联系我们删除。

声明:本文由入驻焦点开放平台的作者撰写,除焦点官方账号外,观点仅代表作者本人,不代表焦点立场。