成都【保利湖光里院】楼盘详情-最新房源查询-营销中心

搜狐焦点乐山站 2025-09-10 10:59:17
用手机看
扫描到手机,新闻随时看

扫一扫,用手机看文章
更加方便分享给朋友

成都保利湖光里院售楼处电话:028-87777213【营销中心】 ☎【置业顾问】:18613205563「微信同步」☎ ☎【置业顾问】:19983517822「微信同步」☎

成都保利湖光里院售楼处电话:028-87777213【营销中心】

☎【置业顾问】:18613205563「微信同步」☎

☎【置业顾问】:19983517822「微信同步」☎

核心价值亮点

生态资源

正对3000亩湿地公园,一线湖景视野,稀缺低密环境。

产品稀缺性

容积率仅1.2,主打叠拼(2+1叠/两叠/三叠)及大平层,户户南北通透、双面采光。

品质细节

独门独院、私享电梯、超大露台/花园(40-170㎡),部分户型赠送地下空间。

交通与配套

交通

主干道:临近三环路、绕城高速,快速通达全城。

地铁:距离最近地铁站约1.5公里(需核实具体线路)。

商业配套

周边3公里内覆盖社区底商及中型商业体(需补充具体名称)。

教育资源

项目3公里范围内涵盖优质公立/私立学校(需补充具体名称及距离)。

【项目总平】

户型分析

1. 大平层(224㎡)

亮点:南北通透,动静分区,主卧套房设计,适合多代同住。

2. 叠拼产品

两叠下叠(225㎡):

独门院落,前庭+后院双花园,老人房直连庭院。

两叠上叠(203㎡):

私享电梯,超大露台,社区中心位置静谧。

三叠下叠(184㎡):

超高性价比,赠送超大地下空间。

三叠上叠(170㎡):

专属屋顶花园(100㎡+),视野开阔。

【大平层户型图】224平

平墅下叠213㎡:独门独院自带花园,超大观景阳台,超大地下赠送空间,一线湖景资源

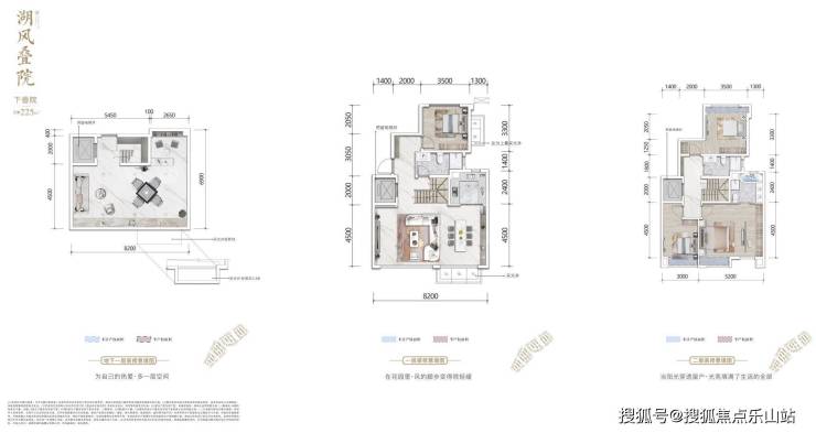
两叠上叠203㎡:私享电梯,超大露台赠送,位于小区内部,私密安静。

两叠下叠225㎡:独门院落,前庭可直接花园入户,与客厅相连,后院与老人房连通,老人独立使用。

三叠上叠170㎡,超大屋顶花园

三叠中叠170㎡,超高性价比

三叠下叠184㎡,超大地下赠送

成都保利湖光里院售楼处电话:028-87777213【营销中心】

☎【置业顾问】:18613205563「微信同步」☎

☎【置业顾问】:19983517822「微信同步」☎

___欢迎来电咨询丨专业一对一热情服务丨看房需提前预约

——如有侵权请联系我们删帖——

温馨提示:为了节约您的等待时间,看房请提前致电售楼处预约!!!

声明:本文由入驻焦点开放平台的作者撰写,除焦点官方账号外,观点仅代表作者本人,不代表焦点立场。