成都远大海湾云锦金秋必看-最新特惠-售楼电话

搜狐焦点乐山站 2025-10-05 12:48:00
用手机看
扫描到手机,新闻随时看

扫一扫,用手机看文章
更加方便分享给朋友

【营销中心】:028-87777213「销售热线」 【置业顾问】:18613205563「微信同步」 【置业顾问】:19983517822「微信同步」 温馨提示:专业一对一热情服务,为了节约您的等待时间,看房请提前致电预约!!!

【营销中心】:028-87777213「销售热线」

【置业顾问】:18613205563「微信同步」

【置业顾问】:19983517822「微信同步」

温馨提示:专业一对一热情服务,为了节约您的等待时间,看房请提前致电预约!!!

免责声明:

以上内容仅作为邀约邀请,涉及的图片为部分区域实拍图和美学畅想图,具体内容请以现场公示和合同约定为准;本文部分资料、部分图片来源于网络,如有侵权请联系我们删除。

世界500强高地·城南核心坐标

远大海湾云锦落子成都高新南中轴核芯,雄踞天府大道城市主轴,与天府软件园(阿里巴巴、腾讯)直线距离仅500米,一桥之隔实现职住无缝衔接。项目直面锦江一线江景,对望中国-欧洲中心,坐拥城南国际化资源高地。

项目核心价值

江景地标藏品

占地约151亩,打造20栋39层超高层住宅

主力建面约129-513㎡精装大平层,3.15米层高奢阔尺度

全系3T3/3T4梯户比,顶层设513㎡一层一户空中府邸

三角洲资源聚合

自持商业体:无缝衔接约13万㎡远大购物中心

交通枢纽

地铁1号线(最近站点天府五街)约700米

天府大道/梓州大道/蓉遵高速环伺

七重森境园林

以“时间花园”为理念,打造七大主题景观组团:

漫时光园(中心会客厅)| 云梦乐园(亲子课堂)

蔚蓝花园(归家礼序)| 奇幻乐园(儿童戏水)

剧场花园(共享书吧)| 轻氧花园(全龄康养)

时光花园(林间冥想)

醇熟配套·精准距离标注

类别配套名称项目距离生态锦江滨水带零距离会龙公园。

商业远大购物中心社区自配银泰百货。

教育省教科院附小。

医疗四川现代医院。

产业欧洲中心对望可见。

国企匠心·品质背书

开发商:远大置业集团(持有成都海湾大酒店等地标)

物业:远大创新物业(5.5元/㎡·月)

精装标准:基装3000元/㎡(含三大件),选用一线品牌

车位比:1:2.16(车位尺寸2.6*5.5米)

交付时间:2026年1月31日

小区平面图

远大置业敬献成都高新战略之作,位于天府大道中轴之上,占据城南核心地段。前有国家级软件园区,对望欧洲中心,侧临领馆区,后为新川科创园区。成都最国际化版图之上,享区域醇熟资源配套。以建面约129-513㎡云端大平层,敬献时代开元者!

项目占地约151亩,容积率4.998。主力户型面积区间为129-513㎡,主要以改善套四双卫/三卫为主,致力于打造远大置业集团豪宅标杆产品。

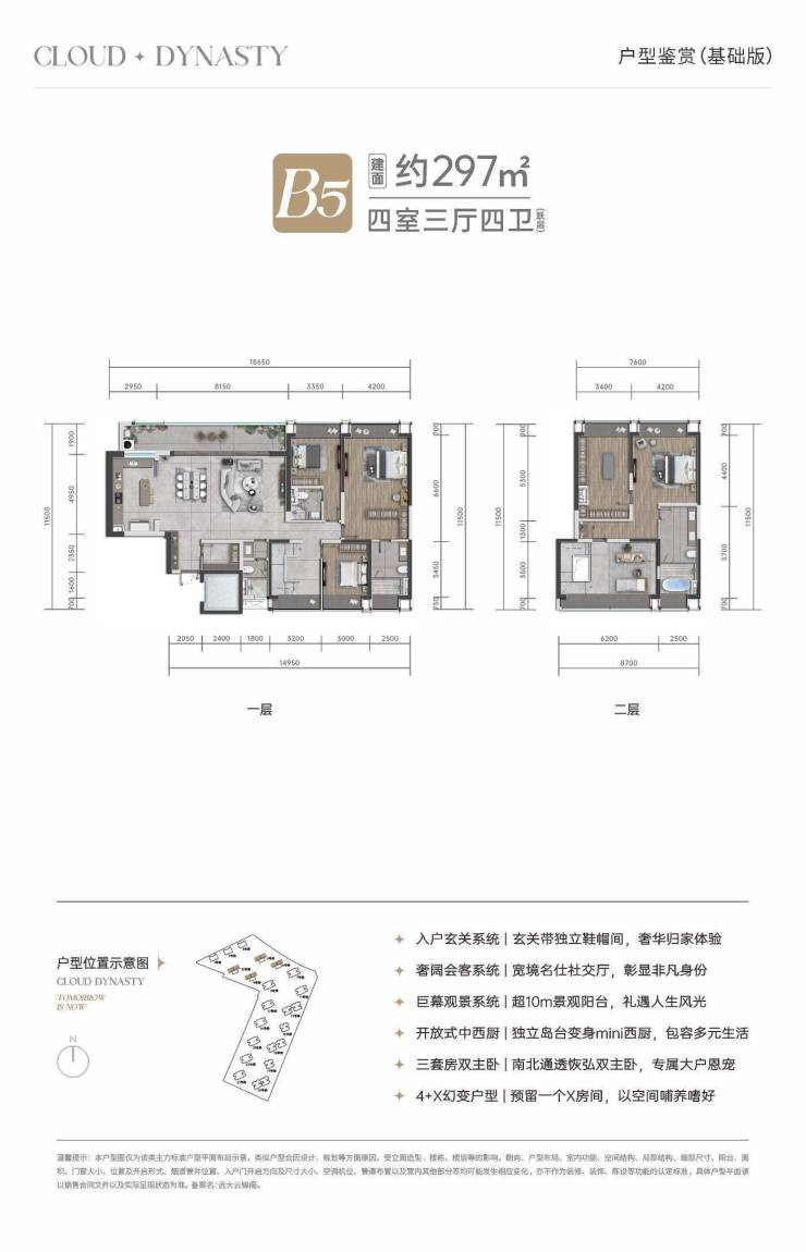
户型图鉴赏

跃层户型图

顶楼的部分还有超500㎡的3T1户和700㎡的3T2户产品,妥妥的豪宅大平层。

【营销中心】:028-87777213「销售热线」

【置业顾问】:18613205563「微信同步」

【置业顾问】:19983517822「微信同步」

温馨提示:专业一对一热情服务,为了节约您的等待时间,看房请提前致电预约!!!

免责声明:

以上内容仅作为邀约邀请,涉及的图片为部分区域实拍图和美学畅想图,具体内容请以现场公示和合同约定为准;本文部分资料、部分图片来源于网络,如有侵权请联系我们删除。

声明:本文由入驻焦点开放平台的作者撰写,除焦点官方账号外,观点仅代表作者本人,不代表焦点立场。