成都西环290|西环290最新项目情况|楼盘户型

搜狐焦点乐山站 2025-09-21 09:17:00
用手机看
扫描到手机,新闻随时看

扫一扫,用手机看文章
更加方便分享给朋友

【营销中心】:028-87777213「销售热线」 【置业顾问】:18613205563「微信同步」 【置业顾问】:19983517822「微信同步」 温馨提示:专业一对一热情服务,为了节约您的等待时间,看房请提前致电预约!!!

【营销中心】:028-87777213「销售热线」

【置业顾问】:18613205563「微信同步」

【置业顾问】:19983517822「微信同步」

温馨提示:专业一对一热情服务,为了节约您的等待时间,看房请提前致电预约!!!

免责声明:

以上内容仅作为邀约邀请,涉及的图片为部分区域实拍图和美学畅想图,具体内容请以现场公示和合同约定为准;本文部分资料、部分图片来源于网络,如有侵权请联系我们删除。

核心占位:青羊芯·三环正脉

坐标:武青北路与日月大道交汇处,距西三环仅200米,坐拥城西“上风上水”稀缺地脉。

产业高地1公里内 成飞集团、青羊工业总部基地聚集,板块土拍楼面价超1.8万/㎡(德商/保利等竞逐)。

生态资源

浣花溪公园/杜甫草堂直线3公里

百花潭公园2.5公里

社区硬指标

物业:龙湖物业(4.8元/㎡·月顶配服务)

梯户比:顶楼4梯5户(私密性MAX)

公摊:8%-22%(豪宅级得房率)

精装:SSD大师设计(深圳华润同款)

五大价值引擎

三地铁交汇500米内 规划4/9/13号线,蓉2号线有轨电车站300米

全龄配套圈

教育:树德中学光华校区 1.2公里

医疗:成都市妇女儿童医院(三甲) 3公里

商业:自持5万方 壹方里商业街+青羊万达1.5公里

大师基因

景观设计 AECOM(纽约世贸中心重建团队)

建筑规划 上海天华(龙湖天街缔造者)

智能奢装

华为全屋智能+3D公区+星空顶

精装品牌对标 融汇城/深圳湾1号

类住宅三通:居住属性完整。

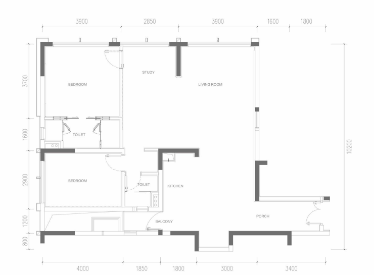
【至臻户型】建面约130/160/177/290㎡奢装大平层

【290户型】:大横厅+12米开间全明采光面,IMAX级环幕瞰景,全景双翼主卧套房

【290户型鉴赏】

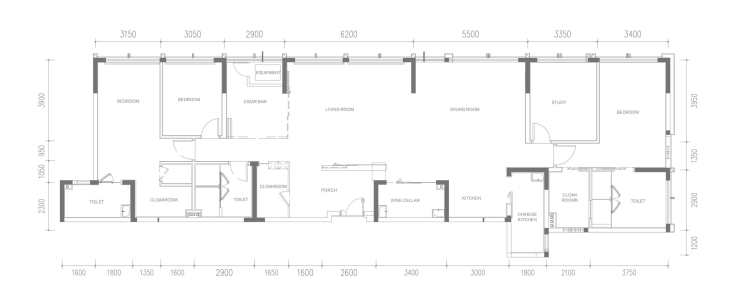
【177户型】:大横厅巨幕式纵深空间,全境大开,高得房率,纵享尺度进阶

【177户型鉴赏】

【160户型】:独立玄关,纯粹动静分离,纵深空间布局

【160户型鉴赏】

【130户型】:宝格丽奢华风,阔尺双户型设计,百变大客厅

【130户型鉴赏】

【营销中心】:028-87777213「销售热线」

【置业顾问】:18613205563「微信同步」

【置业顾问】:19983517822「微信同步」

温馨提示:专业一对一热情服务,为了节约您的等待时间,看房请提前致电预约!!!

免责声明:

以上内容仅作为邀约邀请,涉及的图片为部分区域实拍图和美学畅想图,具体内容请以现场公示和合同约定为准;本文部分资料、部分图片来源于网络,如有侵权请联系我们删除。

声明:本文由入驻焦点开放平台的作者撰写,除焦点官方账号外,观点仅代表作者本人,不代表焦点立场。