成都金融街融御品质如何?金融街融御怎么样?销售热线-楼盘详情
扫描到手机,新闻随时看
扫一扫,用手机看文章
更加方便分享给朋友
【营销中心】:028-87777213「销售热线」
【置业顾问】:18613205563「微信同步」
【置业顾问】:19983517822「微信同步」
温馨提示:专业一对一热情服务,为了节约您的等待时间,看房请提前致电预约!!!
免责声明:
以上内容仅作为邀约邀请,涉及的图片为部分区域实拍图和美学畅想图,具体内容请以现场公示和合同约定为准;本文部分资料、部分图片来源于网络,如有侵权请联系我们删除。
【核心价值】
主城绝版资产:
春熙路商圈173米地标住宅
直线距离太古里仅300米
锦江区政府重点打造项目
立体交通网络:
地铁2/3号线春熙路站500米
地铁4号线市二医院站800米
蜀都大道/红星路3分钟直达全城
创新空间设计:
6.3米层高跃层产品
149-324㎡奢阔空间
4T4顶跃专属电梯配置

【产品信息】
▶ 精装大宅:
149㎡三房两厅两卫
175-182㎡四房两厅三卫
324㎡顶层跃墅
项目参数:
▸ 梯户比:4T7(标准层)/4T4(顶跃)
▸ 物业费:4.95元/㎡
▸ 车位比:1:1.1
▸ 交付标准:精装现房

【配套体系】
商业:太古里(300米)、IFS(500米)
教育:和平街小学(800米)
医疗:华西医院(1.5公里)
政务:锦江区政府(2公里)




项目总平图:

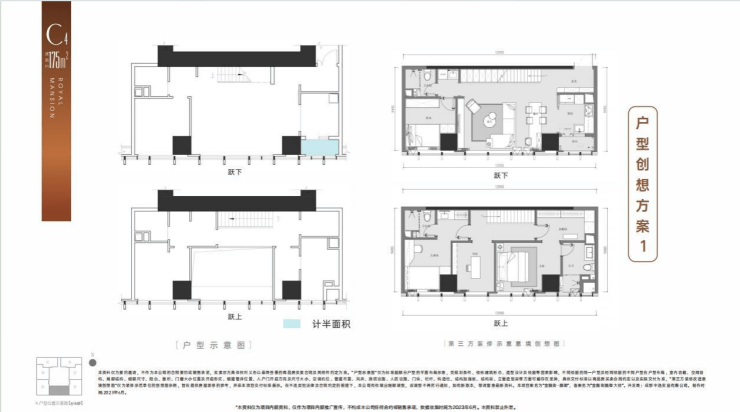
楼层平面图:1、7号—149㎡2、6号—162㎡3、5号—182㎡4号—175㎡

C1-149㎡:


C2-162㎡:


C3-182㎡:


C4-175㎡:



【营销中心】:028-87777213「销售热线」
【置业顾问】:18613205563「微信同步」
【置业顾问】:19983517822「微信同步」
温馨提示:专业一对一热情服务,为了节约您的等待时间,看房请提前致电预约!!!
免责声明:
以上内容仅作为邀约邀请,涉及的图片为部分区域实拍图和美学畅想图,具体内容请以现场公示和合同约定为准;本文部分资料、部分图片来源于网络,如有侵权请联系我们删除。
声明:本文由入驻焦点开放平台的作者撰写,除焦点官方账号外,观点仅代表作者本人,不代表焦点立场。
