成都保利湖光里院(售楼处)楼盘详情-最新房价|户型|容积率|
扫描到手机,新闻随时看
扫一扫,用手机看文章
更加方便分享给朋友
成都保利湖光里院售楼处电话:028-87777213【营销中心】
☎【置业顾问】:18613205563「微信同步」☎
☎【置业顾问】:19983517822「微信同步」☎
前三季度,成都共成交超25万套房源,其中新房7.3万套,二手房超18万套,二手房成交量已达到24年全年的78.3%,成交总量依然在全国首屈一指。值得注意的是,25年9月成都二手房累计成交19581套,成交量同比24年9月的15208套猛涨约28.8%。
不是说市场不行吗,为何成都人还是在恐慌性买房,成交量不跌反涨?
核心价值亮点
生态资源:
正对3000亩湿地公园,一线湖景视野,稀缺低密环境。
产品稀缺性:
容积率仅1.2,主打叠拼(2+1叠/两叠/三叠)及大平层,户户南北通透、双面采光。
品质细节:
独门独院、私享电梯、超大露台/花园(40-170㎡),部分户型赠送地下空间。
交通与配套
交通
主干道:临近三环路、绕城高速,快速通达全城。
地铁:距离最近地铁站约1.5公里(需核实具体线路)。
商业配套
周边3公里内覆盖社区底商及中型商业体(需补充具体名称)。
教育资源
项目3公里范围内涵盖优质公立/私立学校(需补充具体名称及距离)。
【项目总平】
户型分析
1. 大平层(224㎡)
亮点:南北通透,动静分区,主卧套房设计,适合多代同住。
2. 叠拼产品
两叠下叠(225㎡):
独门院落,前庭+后院双花园,老人房直连庭院。
两叠上叠(203㎡):
私享电梯,超大露台,社区中心位置静谧。
三叠下叠(184㎡):
超高性价比,赠送超大地下空间。
三叠上叠(170㎡):
专属屋顶花园(100㎡+),视野开阔。
【大平层户型图】224平
平墅下叠213㎡:独门独院自带花园,超大观景阳台,超大地下赠送空间,一线湖景资源
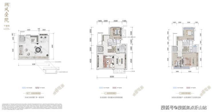
两叠上叠203㎡:私享电梯,超大露台赠送,位于小区内部,私密安静。
两叠下叠225㎡:独门院落,前庭可直接花园入户,与客厅相连,后院与老人房连通,老人独立使用。
三叠上叠170㎡,超大屋顶花园
三叠中叠170㎡,超高性价比
三叠下叠184㎡,超大地下赠送
成都保利湖光里院售楼处电话:028-87777213【营销中心】
☎【置业顾问】:18613205563「微信同步」☎
☎【置业顾问】:19983517822「微信同步」☎
___欢迎来电咨询丨专业一对一热情服务丨看房需提前预约
——如有侵权请联系我们删帖——
温馨提示:为了节约您的等待时间,看房请提前致电售楼处预约!!!
声明:本文由入驻焦点开放平台的作者撰写,除焦点官方账号外,观点仅代表作者本人,不代表焦点立场。
