成都人居江岸林语(售楼处)楼盘详情-最新房价|户型|容积率|
扫描到手机,新闻随时看
扫一扫,用手机看文章
更加方便分享给朋友
成都人居江岸林语售楼处电话:028-87777213【营销中心】
☎【置业顾问】:18613205563「微信同步」☎
☎【置业顾问】:19983517822「微信同步」☎
前三季度,成都共成交超25万套房源,其中新房7.3万套,二手房超18万套,二手房成交量已达到24年全年的78.3%,成交总量依然在全国首屈一指。值得注意的是,25年9月成都二手房累计成交19581套,成交量同比24年9月的15208套猛涨约28.8%。
不是说市场不行吗,为何成都人还是在恐慌性买房,成交量不跌反涨?
人居江岸林语定位高端生态大盘,优势包括:
双TOD+公园城市规划,未来升值潜力大
国企开发+精装交付,品质有保障
低密+河景+优质教育,改善优选
楼盘价值分析
区位价值:
位于温江区与青羊区交界,承接青羊新城规划红利,横跨“西控+中优”双战略区,兼具生态与城市发展优势。
紧邻马厂坝TOD(地铁4号线,距离约1.3公里)及规划中的红桥TOD(地铁28号线),未来双轨交覆盖
生态价值:
一线临江安河,内部引入八斗渠活水,形成内外双河景。
周边4大公园环绕(江安河公园、碧落湖公园、花悦湾公园、非遗博览园),并自建4万㎡中央公园。
开发商实力:
由兴城人居(成都本土国企)开发,品牌保障,曾打造多个高端“林语系”项目(如九林语、麓湖林语等)。
交通配套
轨道交通:
地铁4号线马厂坝站(约1.3公里)
远期规划地铁28号线(红桥TOD)。
主干道:
四横:光华大道、花都大道、成名高速、日月大道
四纵:骑士大道、凤凰大街、土龙路、绕城高速。
生活配套
商业:
3km内:新光天地、合生汇、伊藤洋华堂、永辉超市、盒马
在建:前海购物中心、滨水商业街区。
医疗:
前海妇儿医院(在建)、华西温江分院、省八一康复中心、成都市第五人民医院。
教育:
幼儿园:金苹果幼稚园、红桥幼儿园(459米)
小学:江安路小学、光华实验小学
中学:成都实验外国语学校、嘉祥外国语学校、成都七中实验学校
【项目总平】
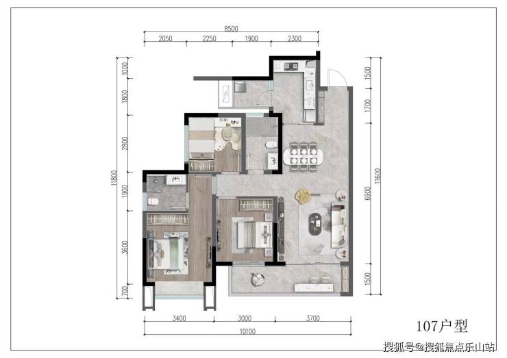
户型亮点:
全明设计,采光通风优良。
动静分区,动线合理,适合改善家庭。
143㎡以上户型主打瞰河景观,居住舒适度高
【户型鉴赏】
成都人居江岸林语售楼处电话:028-87777213【营销中心】
☎【置业顾问】:18613205563「微信同步」☎
☎【置业顾问】:19983517822「微信同步」☎
___欢迎来电咨询丨专业一对一热情服务丨看房需提前预约
——如有侵权请联系我们删帖——
温馨提示:为了节约您的等待时间,看房请提前致电售楼处预约!!!
声明:本文由入驻焦点开放平台的作者撰写,除焦点官方账号外,观点仅代表作者本人,不代表焦点立场。
