成都【金融街融御】10月全新房价表-售楼处电话、户型推荐、优惠申请

搜狐焦点乐山站 2025-10-15 09:30:00
用手机看
扫描到手机,新闻随时看

扫一扫,用手机看文章
更加方便分享给朋友

成都金融街融御售楼处电话:028-87777213【营销中心】 ☎【置业顾问】:18613205563「微信同步」☎ ☎【置业顾问】:19983517822「微信同步」☎

成都金融街融御售楼处电话:028-87777213【营销中心】

☎【置业顾问】:18613205563「微信同步」☎

☎【置业顾问】:19983517822「微信同步」☎

虽然成都土拍价格越拍越高,但主城市场卖得好的,还是那些主力总价在400万级的产品。

比如八开八罄的招商锦城序、多次登顶主城销冠的华润置地中环天宸等。

这背后的原因其实很清晰,虽然土拍价格持续走高,但大多数购房者的购买力是没有明显提升的。

对于绝大多数家庭而言,总价400万级就能在主城实现居住的全面迭代,这种吸引力,无疑是精准且难以抗拒的。

通过这些现象级热盘,我们就不难总结出,要想卖的好,控总价+高品质+高舒适度,以上三者缺一不可。

【项目概况】项目占地:7.5亩

总户数:住宅144户、商办186户

车位数:365个

【项目信息】

层高:局部6.3m挑高

总高:超高层47层

梯户比:4T7户、4T4户(顶楼)

公摊:27%

物业费:4.95元/㎡/月

装修情况:清水

交房时间:2024年12月31号

学校片区:属锦一片区(对应的小学是锦官驿小学、和平街小学、天涯石昭宗祠分校,本项目就近的是和平街,中学则有七中育才水井坊校区、盐道街中学、十七中)

【项目总平图】

【户型鉴赏】

149㎡户型图

162㎡户型图

182㎡户型图:

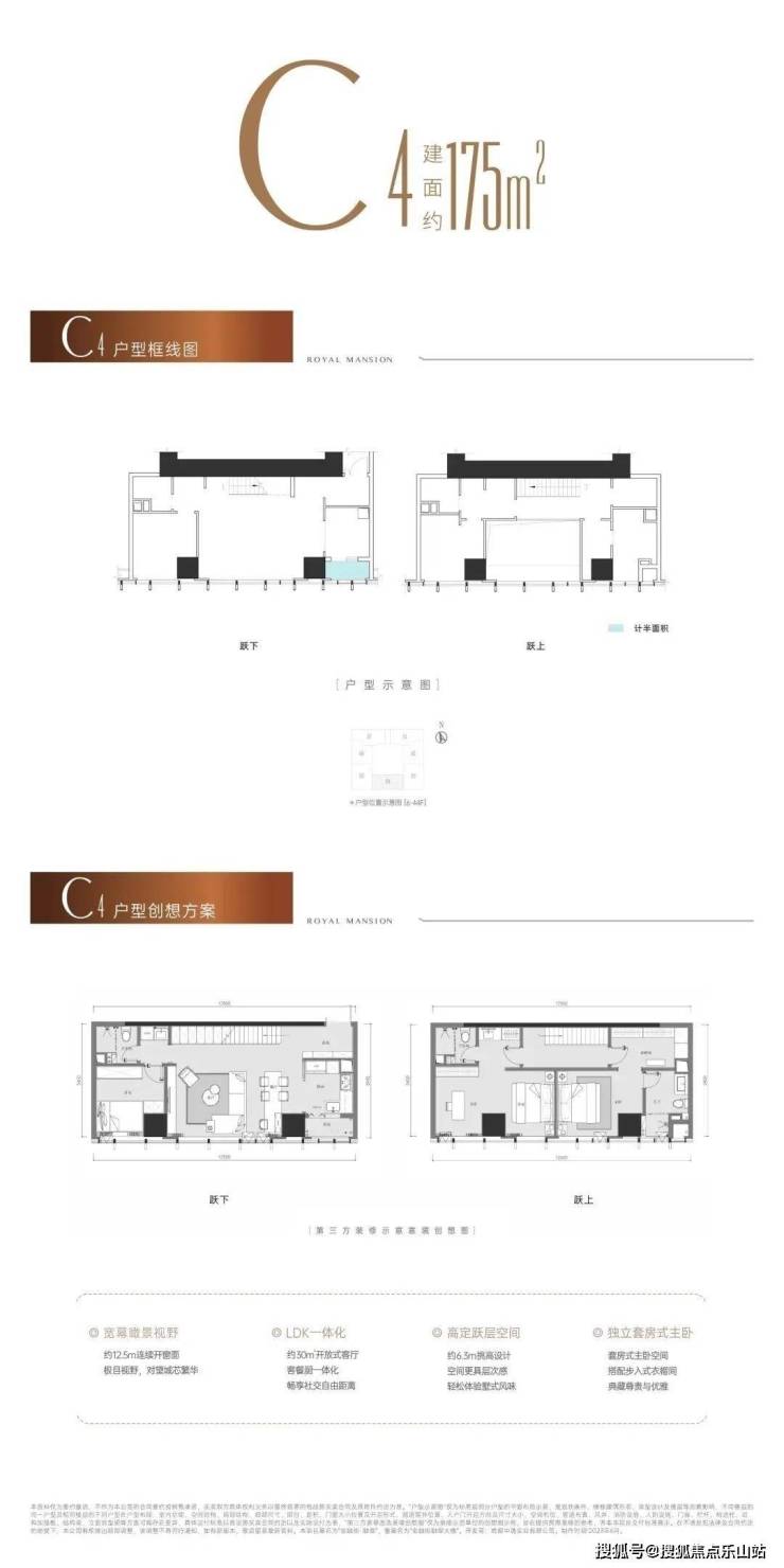
175㎡户型图:

成都金融街融御售楼处电话:028-87777213【营销中心】

☎【置业顾问】:18613205563「微信同步」☎

☎【置业顾问】:19983517822「微信同步」☎

___欢迎来电咨询丨专业一对一热情服务丨看房需提前预约

——如有侵权请联系我们删帖——

温馨提示:为了节约您的等待时间,看房请提前致电售楼处预约!!!

声明:本文由入驻焦点开放平台的作者撰写,除焦点官方账号外,观点仅代表作者本人,不代表焦点立场。