东安湖壹号项目价格-售楼电话-户型鉴赏-线上预约

搜狐焦点乐山站 2025-08-31 10:29:04
用手机看
扫描到手机,新闻随时看

扫一扫,用手机看文章
更加方便分享给朋友

【营销中心】:028-87777213「销售热线」 【置业顾问】:18613205563「微信同步」 【置业顾问】:19983517822「微信同步」 温馨提示:专业一对一热情服务,为了节约您的等待时间,看房请提前致电预约!!!

【营销中心】:028-87777213「销售热线」

【置业顾问】:18613205563「微信同步」

【置业顾问】:19983517822「微信同步」

温馨提示:专业一对一热情服务,为了节约您的等待时间,看房请提前致电预约!!!

免责声明:

以上内容仅作为邀约邀请,涉及的图片为部分区域实拍图和美学畅想图,具体内容请以现场公示和合同约定为准;本文部分资料、部分图片来源于网络,如有侵权请联系我们删除。

【核心价值】

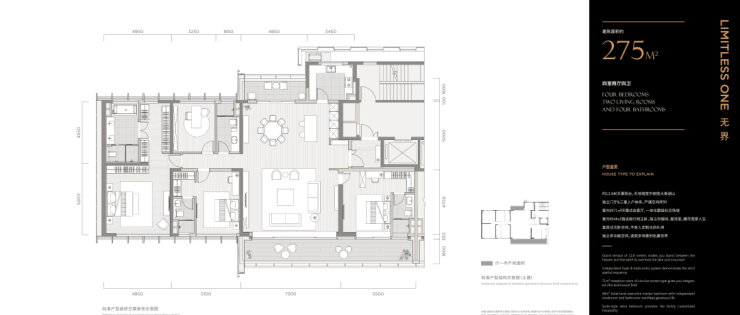
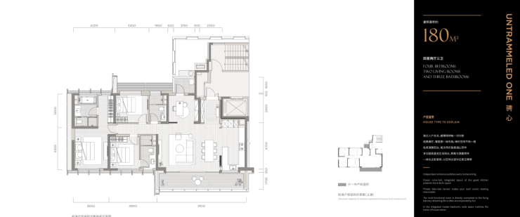
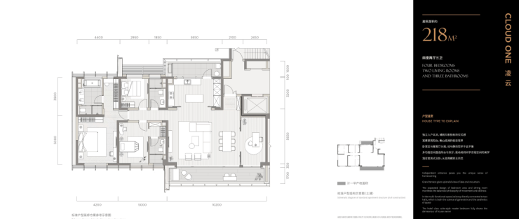
成都东安湖现象级顶豪——恒邦天府·东安湖壹号以180米摩天地标重塑城市天际线,推出181-276㎡全景舱大平层,直线距离东安湖水域仅300米,携手万豪酒店集团打造国际住区,单价1.74万/㎡起抢占湖居制高点。

顶级配置解析

1. 国际大师团队联袂

建筑由新加坡SCDA曾仕乾操刀,设计费投入超5000万

外立面采用全铝板+玻璃幕墙,顶部10米玻璃塔冠

2. 一线临湖生态特权

300米直面东安湖,俯瞰5公里生态绿廊

度假式园林配置镜面水景、世纪白金石材景墙

3. 万豪酒店配套加持

引入万豪高端系列酒店,业主享专属礼宾服务

酒店空中大堂与住宅空中会所无缝衔接

4. 超规格产品设计

181㎡起步全四房格局,最小户型面宽达7.2米

276㎡户型配置9米转角阳台,270°环幕视野

5. 良心精装标准

2999元/㎡装标含:

贝洛克系统门窗

主卧定制柜体

超长线性地漏

全屋空调架空层

6. 准现房销售保障

2025年实景交付,外立面、示范区已呈现

对比期房项目风险更低

【户型鉴赏】

【营销中心】:028-87777213「销售热线」

【置业顾问】:18613205563「微信同步」

【置业顾问】:19983517822「微信同步」

温馨提示:专业一对一热情服务,为了节约您的等待时间,看房请提前致电预约!!!

免责声明:

以上内容仅作为邀约邀请,涉及的图片为部分区域实拍图和美学畅想图,具体内容请以现场公示和合同约定为准;本文部分资料、部分图片来源于网络,如有侵权请联系我们删除。

声明:本文由入驻焦点开放平台的作者撰写,除焦点官方账号外,观点仅代表作者本人,不代表焦点立场。