成都北湖揽樾(售楼处)楼盘详情-最新房价|户型|容积率|

搜狐焦点乐山站 2025-10-08 10:56:42
用手机看
扫描到手机,新闻随时看

扫一扫,用手机看文章
更加方便分享给朋友

成都北湖揽樾售楼处电话:028-87777213【营销中心】 ☎【置业顾问】:18613205563「微信同步」☎ ☎【置业顾问】:19983517822「微信同步」☎

成都北湖揽樾售楼处电话:028-87777213【营销中心】

☎【置业顾问】:18613205563「微信同步」☎

☎【置业顾问】:19983517822「微信同步」☎

前三季度,成都共成交超25万套房源,其中新房7.3万套,二手房超18万套,二手房成交量已达到24年全年的78.3%,成交总量依然在全国首屈一指。值得注意的是,25年9月成都二手房累计成交19581套,成交量同比24年9月的15208套猛涨约28.8%

不是说市场不行吗,为何成都人还是在恐慌性买房,成交量不跌反涨?

项目核心价值

低密宜居:容积率仅1.52,以洋房、叠拼、大平层为主,居住舒适度高。

产品多样:涵盖洋房(8层)、叠拼(3层)、大平层,满足不同改善需求。

品质装修:洋房精装交付(2000元/㎡标准),叠拼和大平层清水交付,空间可塑性强。

品牌物业:中铁建物业提供高品质服务,洋房物业费3元/㎡,叠拼4.5元/㎡。

交通配套

地铁:距离地铁8号线(规划中)约1.2公里。

主干道:紧邻龙青路、北湖生态公园环线,快速衔接成华大道、三环路。

公交:周边500米内设有多条公交线路(如666路、87路)。

三、生活配套

商业:3公里内涵盖龙湖滨江天街、万象城等大型商业综合体。

生态:项目紧邻北湖生态公园(直线距离约800米),享湖景资源。

医疗:2公里范围内有成都市第二人民医院(龙潭院区)。

四、教育资源

幼儿园:项目配建幼儿园,周边1.5公里内有金苹果幼儿园等优质园所。

中小学:划片成华区教育资源,如成都万汇学校(距约2公里)、石室中学北湖校区(距约3公里)。

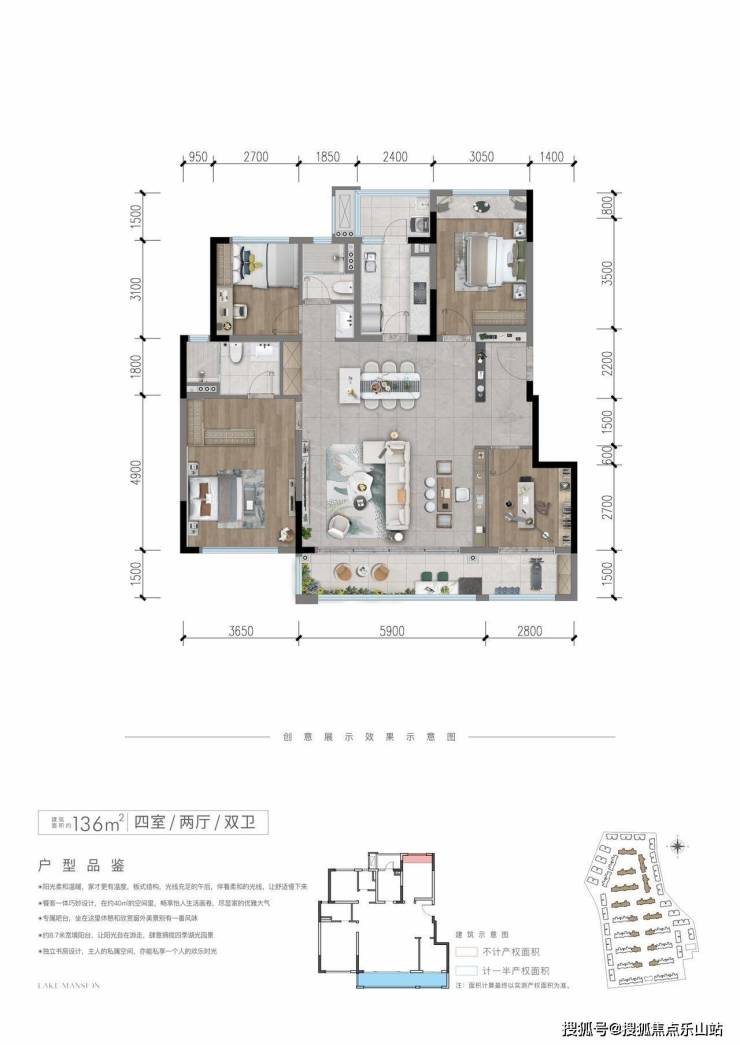
户型亮点分析

洋房(1梯2户)

主力面积约110-140㎡,全明设计,2.95米层高,空间通透。

精装交付,配置地暖、中央空调等,性价比高。

叠拼(1梯2户)

建面约200-250㎡,3.2米层高,负一层5.1米挑高(78㎡),可改造为多功能空间。

清水交付,满足个性化装修需求。

大平层(1梯1户)

建面约180-220㎡,私梯入户,视野开阔,定位高端改善。

成都北湖揽樾售楼处电话:028-87777213【营销中心】

☎【置业顾问】:18613205563「微信同步」☎

☎【置业顾问】:19983517822「微信同步」☎

___欢迎来电咨询丨专业一对一热情服务丨看房需提前预约

——如有侵权请联系我们删帖——

温馨提示:为了节约您的等待时间,看房请提前致电售楼处预约!!!

声明:本文由入驻焦点开放平台的作者撰写,除焦点官方账号外,观点仅代表作者本人,不代表焦点立场。