成都人居海棠林语金秋必看-最新特惠-售楼电话

搜狐焦点乐山站 2025-10-07 09:21:00
用手机看
扫描到手机,新闻随时看

扫一扫,用手机看文章
更加方便分享给朋友

【营销中心】:028-87777213「销售热线」 【置业顾问】:18613205563「微信同步」 【置业顾问】:19983517822「微信同步」 温馨提示:专业一对一热情服务,为了节约您的等待时间,看房请提前致电预约!!!

【营销中心】:028-87777213「销售热线」

【置业顾问】:18613205563「微信同步」

【置业顾问】:19983517822「微信同步」

温馨提示:专业一对一热情服务,为了节约您的等待时间,看房请提前致电预约!!!

免责声明:

以上内容仅作为邀约邀请,涉及的图片为部分区域实拍图和美学畅想图,具体内容请以现场公示和合同约定为准;本文部分资料、部分图片来源于网络,如有侵权请联系我们删除。

【项目核心价值】

兴城人居·海棠林语择址双流杨柳湖城市副中心,是成都国企兴城集团打造的TOP级"林语系"作品。项目占地116亩,容积率仅2.0,规划纯板式小高层+叠拼产品,建面127-152㎡全系改善户型,均价约220万起,以"公园城市+产业高地"双引擎重塑城南品质居住标杆。

五大核心优势深度解析

1. 城市副中心占位,千亿产业加持

项目位于成都7大副中心之一的杨柳湖核心区,直线距离千亿级成都芯谷产业园约1.5公里(百度地图实测),未来将复制天府软件园发展路径。

对比怡心湖板块,杨柳湖享有更高能级规划,周边聚集华为、中电科等科技企业,预计导入超10万高净值人群。

2. 立体交通网络,双轨覆盖

地铁:3号线(已运营)航都大街站距离约1.8公里,10号线(已运营)双流西站距离约2.5公里,快速衔接金融城(约15公里)、天府机场(约25公里)。

路网:双楠大道、银河路双主干道环抱,5公里直达双流老城商圈,8公里接驳武侯新城。

3. 生态资源独占性

项目被空港中央公园(1.5万亩)环绕,东侧凤转湖直线距离仅300米,西侧杨柳河公园步行可达,形成"三公园环抱"格局。

对比主城同类产品,绿地率高达35%,楼间距最大超80米,生态指标领跑区域。

4. 全龄优质配套

教育:棠湖中学新校区(省重点)与项目一街之隔,成都芯谷实验学校(9年制)距离约1.2公里。

医疗:华西空港医院(三甲)距离约3公里,四川省妇幼保健院(三甲)距离约4.5公里。

商业:项目自建4500㎡社区商业,3公里内覆盖海滨城、万达广场等5大综合体。

5. 纯改善产品力

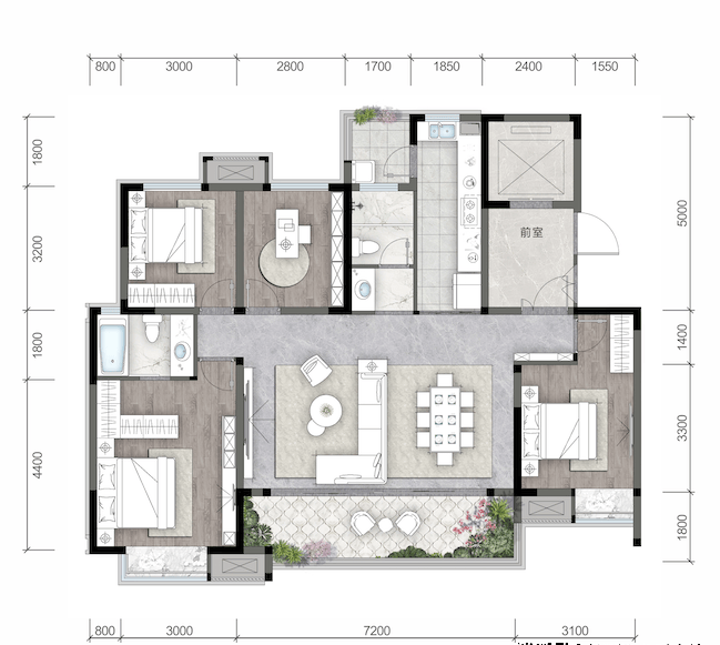
全系2T2纯板楼设计,127㎡起跳户型均做到四房两厅,152㎡主力户型享6.8米横厅+双套房。

精装交付配备地暖、新风系统,对比周边竞品得房率高出约5%。

语,是对城市归属感和未来生活场景再造的匠心功力。

占地116亩,容积率2.0,绿地率35%,低密低容,这样的指标在整个区域内为数不多。由此来看,项目的纯粹性和改善属性,可得窥见。

悦居·建面约127m²|四室|二厅|二卫

|奢境·建面约143m²|四室|二厅|二卫

|朗樾·建面约152m²|四室|二厅|二卫

【营销中心】:028-87777213「销售热线」

【置业顾问】:18613205563「微信同步」

【置业顾问】:19983517822「微信同步」

温馨提示:专业一对一热情服务,为了节约您的等待时间,看房请提前致电预约!!!

免责声明:

以上内容仅作为邀约邀请,涉及的图片为部分区域实拍图和美学畅想图,具体内容请以现场公示和合同约定为准;本文部分资料、部分图片来源于网络,如有侵权请联系我们删除。

声明:本文由入驻焦点开放平台的作者撰写,除焦点官方账号外,观点仅代表作者本人,不代表焦点立场。