成都招商时代公园 最新动态|值得买吗?最新配套-房价-最新户型

搜狐焦点乐山站 2025-09-16 07:53:00
用手机看
扫描到手机,新闻随时看

扫一扫,用手机看文章
更加方便分享给朋友

成都 招商时代公园【营销中心】:028-87777213「销售热线」 【置业顾问】:18613205563「微信同步」 【置业顾问】:19983517822「微信同步」

成都 招商时代公园【营销中心】:028-87777213「销售热线」

【置业顾问】:18613205563「微信同步」

【置业顾问】:19983517822「微信同步」

成都市规划和自然资源局关于公开征求《〈成都市城市规划管理技术规定(2024)〉 的补充规定》意见的公告,涉及容积率、封窗新规。

一、支持立面公建化,建筑立面统一

为促进建筑立面协调统一,支持住宅立面公建化设计,阳台无论封闭与否,均按照其水平投影面积的 1/2 纳入容积率计算。

二、提升阳台等房屋空间品质

为打造亲近自然的居住空间,满足市民多样化居住需求,阳台、飘窗、以及各类形式的入户花园、空中花园、露台、退台、设备平台、空调板、构造板、结构板、抗震板、开敞式电梯前室、外廊、空腔、镂空、花池等房屋附属空间的水平投影面积不大于该项目住宅计容建筑面积的30%。

三、支持住宅小区设置开敞式风雨连廊

为方便居民室外休息活动,打造适应成都气候的遮风避雨归家路线,鼓励在不影响居民日常生活的前提下,通过设置开敞式风雨连廊,将小区出入口、楼栋出入口、单元出入口、小区内全民健身场所等公共空间相互连接。

开敞式风雨连廊不纳入容积率、建筑密度计算。

招商时代公园占据天府新区核心区位,以“公园城市”为基底,融合POD+TOD+VOD的3D营城理念,打造生态、交通、商业、居住一体化的城市标杆。项目凭借成熟地段、稀缺生态资源、地标赋能、高性价比价格四大优势,成为天西改善市场的“六边形战士”。

核心价值分析

1. 区位价值:天西北高熟区,城市资源高位占有

天府CBD核心:位于天府总部商务区(天西),定位“未来城市新中心”,周边汇聚企业总部、国际会议中心、一带一路大厦(396m地标)、天府大悦城等高能级配套。

成熟度领先:相比天东,天西北侧开发更早,城市界面成熟,居住氛围纯粹,配套兑现度高。

公园环绕:三面(东/西/南)被人字绿廊公园环抱,小区与68亩绿地无缝衔接,容积率仅1.28,媲美低密别墅区。

交通优势:立体轨交枢纽,高效通勤

TOD枢纽:项目隶属招商时代公园TOD范围,规划5条轨道(6/16/19/26/S5号线),4大站点无缝接驳。

地铁便捷:19号线二期(直线约800米,已通车),快速链接双流机场、金融城等核心区域。

地下交通网:地下二层设12对车行通道,避免拥堵;地下三层直达轨交站点及城市候机厅。

配套资源:全能生活圈,奢配加持

商业

一街之隔为396m地标下的高定奢尚生活中心;

周边汇聚天府大悦城、花园城购物中心、保税中心等,满足高端消费需求。

生态

3450亩天府公园+2160米人字绿廊,打造“公园城市”天花板;

小区内部“川西十景”园林,借景318国道元素,实现沉浸式自然体验。

教育:天府七中、天府七小(直线约800米),优质教育资源环伺。

以成熟区位、公园资源、地标赋能、全能户型为核心竞争力,是天府新区稀缺的“确定性高端资产”。对于追求城市核心资源、低密生态居住体验的高净值人群而言,该项目是目前天西板块的首选改善标的。

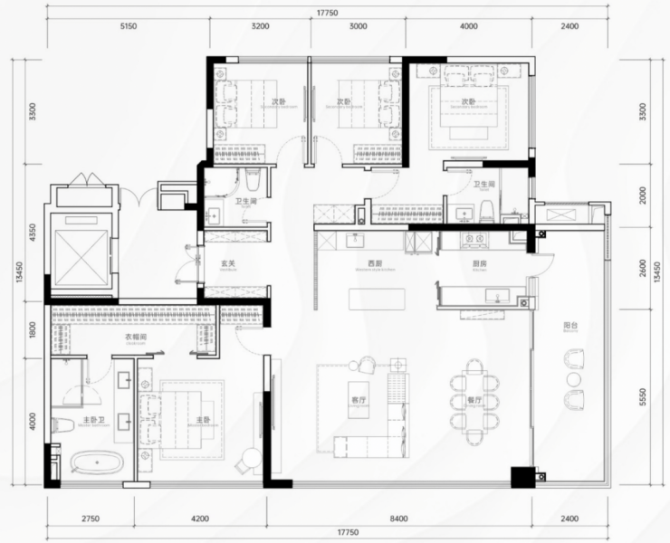
户型亮点

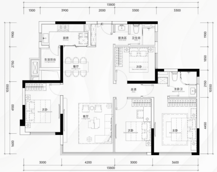
建面约143㎡(四房):主流改善面积,总价454万起,性价比极高;

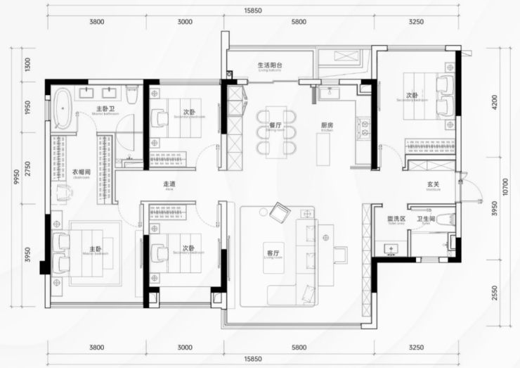
建面约174㎡(四房):双面观景,南向面宽约15.8m,LDKG一体化方厅,主卧套间约30㎡;

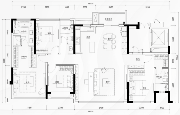
建面约193-226㎡(T2大平层):专为高端客群定制,通透板式布局,奢阔空间尺度。

声明:本文由入驻焦点开放平台的作者撰写,除焦点官方账号外,观点仅代表作者本人,不代表焦点立场。