成都华兴滨江锦宸优缺点分析,(华兴滨江锦宸)能不能买,一文读懂

搜狐焦点乐山站 2025-09-16 08:16:00
用手机看
扫描到手机,新闻随时看

扫一扫,用手机看文章
更加方便分享给朋友

成都 华兴滨江锦宸【营销中心】:028-87777213「销售热线」 【置业顾问】:18613205563「微信同步」 【置业顾问】:19983517822「微信同步」

成都 华兴滨江锦宸【营销中心】:028-87777213「销售热线」

【置业顾问】:18613205563「微信同步」

【置业顾问】:19983517822「微信同步」

成都市规划和自然资源局关于公开征求《〈成都市城市规划管理技术规定(2024)〉 的补充规定》意见的公告,涉及容积率、封窗新规。

一、支持立面公建化,建筑立面统一

为促进建筑立面协调统一,支持住宅立面公建化设计,阳台无论封闭与否,均按照其水平投影面积的 1/2 纳入容积率计算。

二、提升阳台等房屋空间品质

为打造亲近自然的居住空间,满足市民多样化居住需求,阳台、飘窗、以及各类形式的入户花园、空中花园、露台、退台、设备平台、空调板、构造板、结构板、抗震板、开敞式电梯前室、外廊、空腔、镂空、花池等房屋附属空间的水平投影面积不大于该项目住宅计容建筑面积的30%。

三、支持住宅小区设置开敞式风雨连廊

为方便居民室外休息活动,打造适应成都气候的遮风避雨归家路线,鼓励在不影响居民日常生活的前提下,通过设置开敞式风雨连廊,将小区出入口、楼栋出入口、单元出入口、小区内全民健身场所等公共空间相互连接。

开敞式风雨连廊不纳入容积率、建筑密度计算。

项目核心价值

主城稀缺现房:成都主城区罕有现房销售,即买即住,品质所见即所得。

低密滨江墅区:容积率仅1.5,30%绿地率,打造城南高端低密人居典范。

一线江景资源:西邻江安河,坐拥千米滨江景观,推窗即享自然与繁华。

品牌实力保障:华兴地产深耕成都26年,国家一级开发资质,已交付10个项目,服务6.3万业主。

交通优势

地铁:近地铁5号线骑龙站,便捷通达全城。

主干路网:

三横:天府五街、元秀路、华阳大道

三纵:剑南大道、华府大道、华秀路

立体交通:快速接驳高新南区、金融城等核心商圈。

三、醇熟生活配套

商业

2km范围内覆盖大润发商圈、世豪广场、银泰城,满足高端购物需求。

医疗

四川大学华西医院高新院区(2026年运营)

成都市第三人民医院高新院区(已批复)

生态

滨江公园(在建)、三江公园(在建)、骑龙公园(规划中)环绕,生态宜居。

优质教育资源

怡心第一实验学校(直线距离约900米)

成都教科院附属学校、成都七中高新校区等优质学府环伺,全龄教育无忧。

项目亮点总结

主城现房:规避期房风险,即买即住。

低密滨江:1.5容积率,30%绿地率,稀缺江景资源。

醇熟配套:商业、医疗、教育、生态全维覆盖。

产品力强:平层+墅境双产品线,精工细节领先市场。

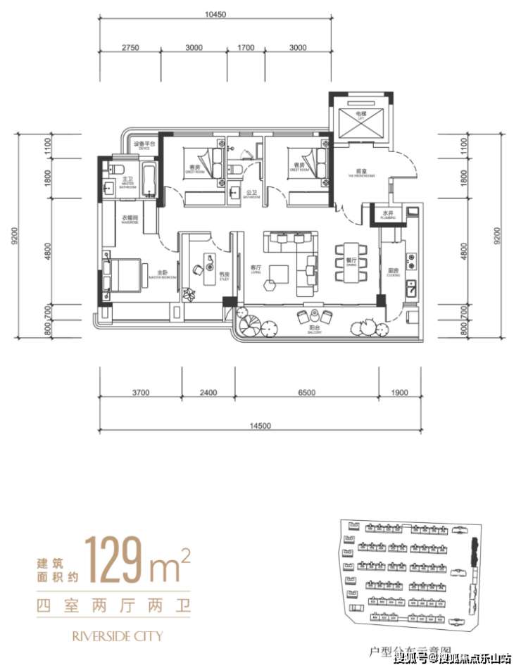
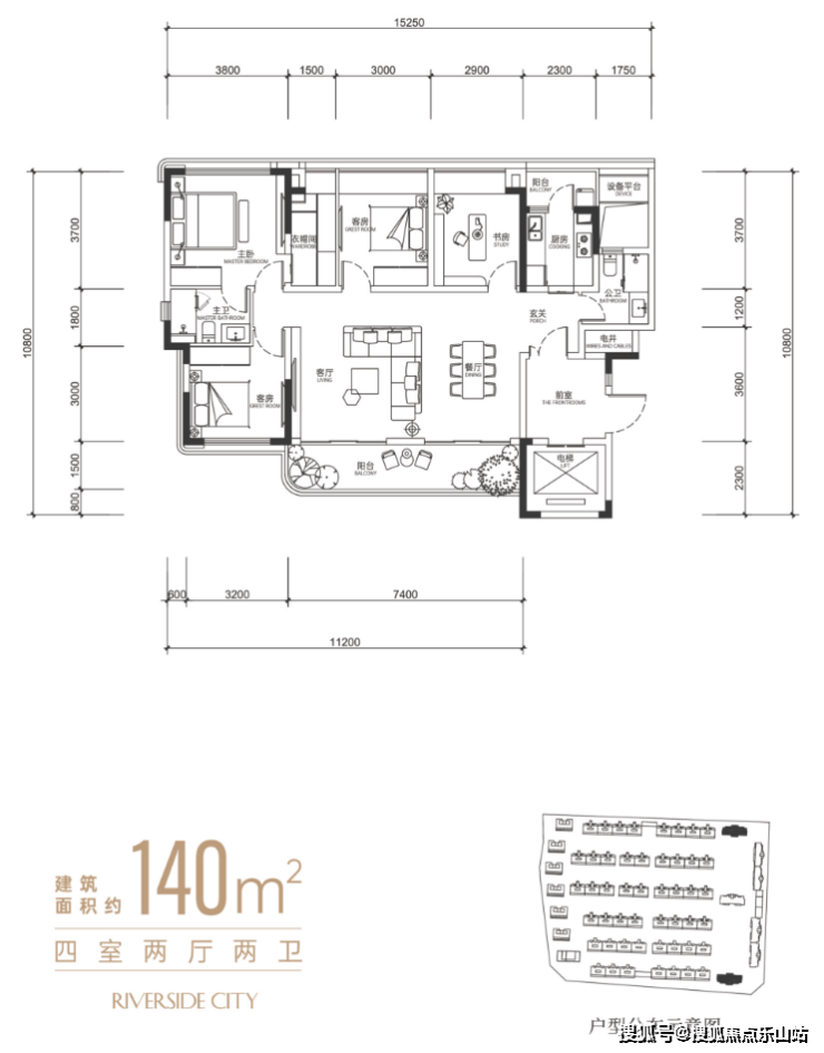
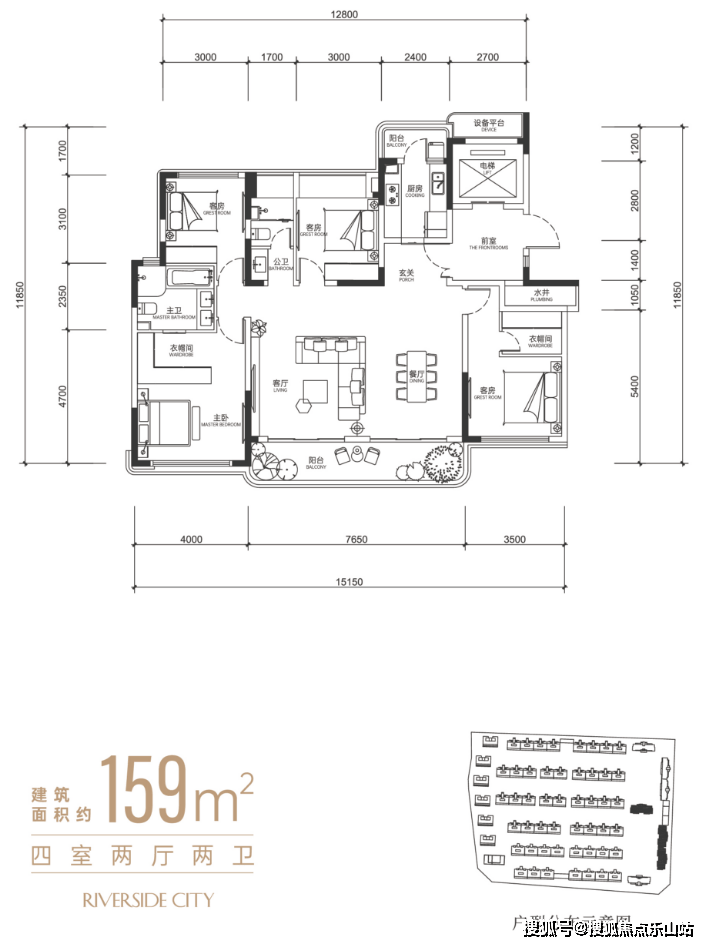
天际阔景平层(建面约129-159㎡)

梯户比2T2,私密性高,3.1米层高,空间通透。

全屋明管铺设、自流平地面、新风预留,装修便捷。

适合城市精英家庭,兼顾舒适与功能性。

江岸雅奢墅境(建面约174-325㎡)

低密墅质产品,3.5米层高,奢阔空间。

蓝钻花岗岩立面、酒店式入户大堂,彰显高端品质。

一线临江,私家庭院,满足高端改善需求。

成都 华兴滨江锦宸【营销中心】:028-87777213「销售热线」

【置业顾问】:18613205563「微信同步」

【置业顾问】:19983517822「微信同步」

声明:本文由入驻焦点开放平台的作者撰写,除焦点官方账号外,观点仅代表作者本人,不代表焦点立场。