成都幸福桥TOD幸福拾光|幸福桥TOD幸福拾光最新项目情况|楼盘户型

搜狐焦点乐山站 2025-09-16 09:04:00
用手机看
扫描到手机,新闻随时看

扫一扫,用手机看文章
更加方便分享给朋友

【营销中心】:028-87777213「销售热线」 【置业顾问】:18613205563「微信同步」 【置业顾问】:19983517822「微信同步」 温馨提示:专业一对一热情服务,为了节约您的等待时间,看房请提前致电预约!!!

【营销中心】:028-87777213「销售热线」

【置业顾问】:18613205563「微信同步」

【置业顾问】:19983517822「微信同步」

温馨提示:专业一对一热情服务,为了节约您的等待时间,看房请提前致电预约!!!

免责声明:

以上内容仅作为邀约邀请,涉及的图片为部分区域实拍图和美学畅想图,具体内容请以现场公示和合同约定为准;本文部分资料、部分图片来源于网络,如有侵权请联系我们删除。

核芯地段价值(精准测距)

🚇双轨零距离

地铁5号线幸福桥站:步行约50米

27号线石门坎站(建设中):直线约300米

城市节点通达

天府广场直线约12公里

火车北站车行约5公里

凤凰山体育公园直线约1.8公里

全能生活圈(实测距离)

🏫名校正读保障

人民北路小学(天北校区):步行约800米(正读学区)

机关三幼:车行约1.2公里

成都实验小学:直线约2.5公里

🌿千亩文体公园

凤凰山露天音乐公园:车行约1.5公里(约800亩)

凤凰山体育公园:步行约1.2公里(约600亩)

社区内部绿化率:二期52%(主城天花板)

🛍商圈举步即达

龙湖锦宸天街:车行约2.3公里

汇融广场:步行约900米

福地广场:直线约1公里

🏥三甲医疗

西部战区总医院:车行约4公里

金牛区中医医院(在建):直线约1.5公里

四大颠覆性价值

✅ 主城最低门槛

183万起入驻三环旁准现房(108㎡三房)

较主城均价低40%+(主城均价26815元/㎡)

✅ TOD双轨上盖

50米抵5号线+300米达27号线(规划中)

成都首个轨道集团自建TOD住区

✅ 生态天花板

二期52%绿化率(主城最高)

双千亩公园环抱(凤凰山双公园)

✅ 教育无忧

正读人北小学+实小双名校

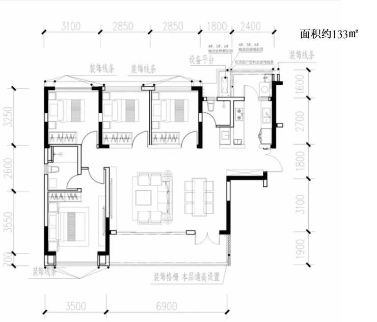
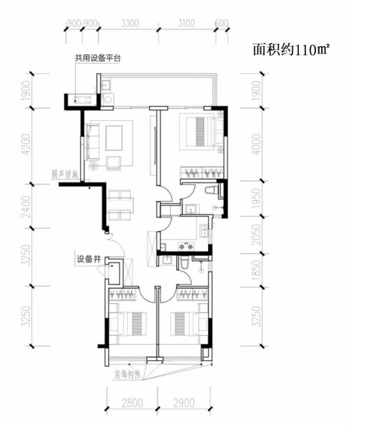
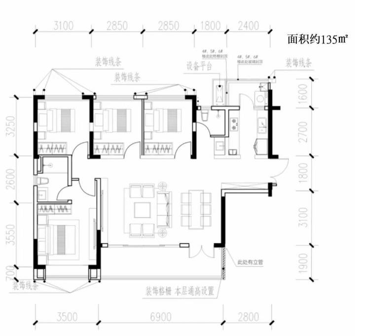
在售户型:

【营销中心】:028-87777213「销售热线」

【置业顾问】:18613205563「微信同步」

【置业顾问】:19983517822「微信同步」

温馨提示:专业一对一热情服务,为了节约您的等待时间,看房请提前致电预约!!!

免责声明:

以上内容仅作为邀约邀请,涉及的图片为部分区域实拍图和美学畅想图,具体内容请以现场公示和合同约定为准;本文部分资料、部分图片来源于网络,如有侵权请联系我们删除。

声明:本文由入驻焦点开放平台的作者撰写,除焦点官方账号外,观点仅代表作者本人,不代表焦点立场。