成都【城投艺墅语湖】金秋钜惠!2025特价房源限时抢购,售楼热线

搜狐焦点乐山站 2025-09-17 09:03:15
用手机看
扫描到手机,新闻随时看

扫一扫,用手机看文章
更加方便分享给朋友

成都城投艺墅语湖售楼处电话:028-87777213【营销中心】 ☎【置业顾问】:18613205563「微信同步」☎ ☎【置业顾问】:19983517822「微信同步」☎

成都城投艺墅语湖售楼处电话:028-87777213【营销中心】

☎【置业顾问】:18613205563「微信同步」☎

☎【置业顾问】:19983517822「微信同步」☎

城投艺墅语湖——以低密墅境,敬献主城峰层生活。

成都市规划和自然资源局关于公开征求《〈成都市城市规划管理技术规定(2024)〉 的补充规定》意见的公告,涉及容积率、封窗新规。

一、支持立面公建化,建筑立面统一

为促进建筑立面协调统一,支持住宅立面公建化设计,阳台无论封闭与否,均按照其水平投影面积的 1/2 纳入容积率计算。

二、提升阳台等房屋空间品质

为打造亲近自然的居住空间,满足市民多样化居住需求,阳台、飘窗、以及各类形式的入户花园、空中花园、露台、退台、设备平台、空调板、构造板、结构板、抗震板、开敞式电梯前室、外廊、空腔、镂空、花池等房屋附属空间的水平投影面积不大于该项目住宅计容建筑面积的30%。

三、支持住宅小区设置开敞式风雨连廊

为方便居民室外休息活动,打造适应成都气候的遮风避雨归家路线,鼓励在不影响居民日常生活的前提下,通过设置开敞式风雨连廊,将小区出入口、楼栋出入口、单元出入口、小区内全民健身场所等公共空间相互连接。

开敞式风雨连廊不纳入容积率、建筑密度计算。

核心价值分析

主城稀缺低密住区

容积率仅1.55,219亩大盘规划,打造叠拼、高层、商墅多元产品,主城东三环罕有低密墅居群落。

清水交付,层高3.2米,IMAX级景观面与光学玻璃立面,提升居住质感。

自然与人文双栖

紧邻30000亩青龙湖湿地公园、成都大学嘤鸣湖,坐拥环城生态带与缤纷花海,推窗见绿。

比邻成都大学、东盟艺术学院,人文艺术氛围浓厚,区域内规划专业剧场、音乐厅及成都最大图书馆。

发展潜力强劲

东三环十陵板块,叠加“中优”“东进”双重红利,城市更新加速,价值潜力可期。

交通配套

地铁:4号线(成都大学站、明蜀王陵站)、9号线(在建)、12号线(规划中),范家院子TOD(规划)。

路网:东三环主干道,快速通达全城。

生活配套

商业:5分钟直达成都大学东盟生活圈,15分钟覆盖万象城商圈。

医疗:四川省人民医院(东院)、成都长江医院等优质资源环伺。

教育:十陵中学、十陵小学、成都大学附属小学等全龄教育资源。

园林与社区设计

一轴三重景:240米艺墅山谷景观轴、景观水景、阅读溪谷、红枫庭落。

全龄活动空间:700米环形跑道、400㎡儿童乐园、架空层泛会所(健身/亲子/会客)。

户型推荐

上叠(234㎡ | 四房两厅三卫 | 总价380万起)

亮点:顶层私密性佳,赠送49-56㎡楼顶花园,适合家庭聚会与园艺生活。

中叠(212㎡ | 四房两厅三卫 | 总价370万起)

亮点:18㎡露台设计,兼顾景观与实用性,性价比之选。

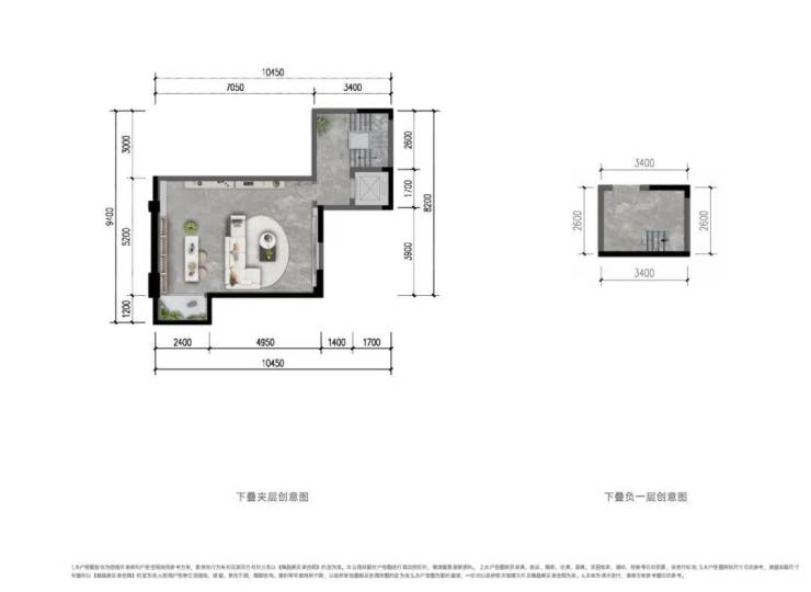
下叠(274㎡ | 四房两厅四卫 | 总价450-550万起)

亮点:31-107㎡私家庭院,四卫设计,适合多代同堂或高端改善需求。

成都城投艺墅语湖售楼处电话:028-87777213【营销中心】

☎【置业顾问】:18613205563「微信同步」☎

☎【置业顾问】:19983517822「微信同步」☎

___欢迎来电咨询丨专业一对一热情服务丨看房需提前预约

——如有侵权请联系我们删帖——

温馨提示:为了节约您的等待时间,看房请提前致电售楼处预约!!!

声明:本文由入驻焦点开放平台的作者撰写,除焦点官方账号外,观点仅代表作者本人,不代表焦点立场。